立即预约 立即预约
免费定制整装家居

免费定制整装家居

一站置家 全程无忧 一省到底
hide.png

当前位置: 首页 > 装修案例效果图 > 月星国际城

月星国际城 104平 北欧风格效果图

收藏
案例风格 北欧 案例户型 三居 案例面积 104平米
楼盘名称 月星国际城 设计师 林凤设计师 案例类型 改善性住宅

设计理念:本案的装修风格属于北欧风格,北欧风格的简洁体现在整体色调的统一以及直线条的运用。北欧风格的设计多以黑白色为主,虽然简单,但却带着强烈的设计感。而且从家具到墙面装饰,简洁利落的直线条随处可见,充满了现代气息。

客厅
第1张
第2张
第3张
餐厅
第1张
第2张
卧室
第1张
卫生间
第1张
厨房
第1张
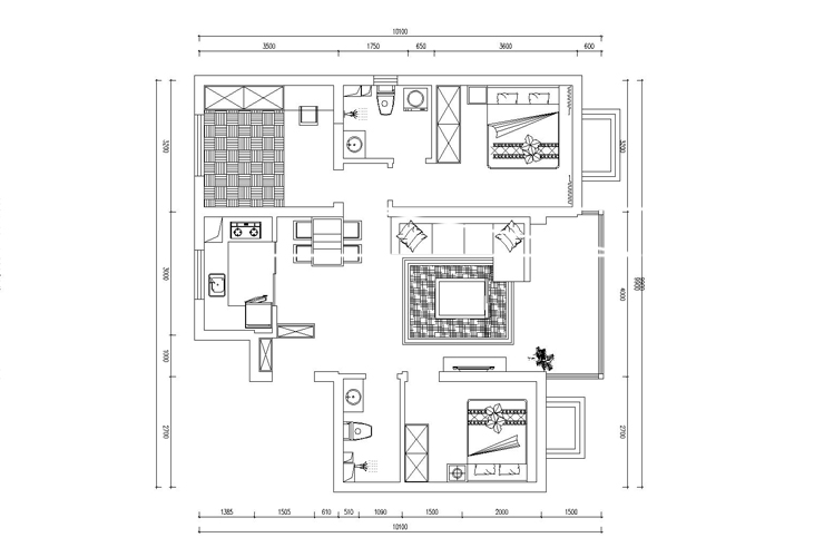
户型图
第1张
  • 案例详情

月星国际城-104平-北欧风格-客厅.jpg 月星国际城-104平-北欧风格-客厅3.jpg 月星国际城-104平-北欧风格-客厅2.jpg

整个客厅以灰色调为主,虽然看起来不张扬,但却能体现出北欧风格的特点。灰色的沙发和整个客厅的墙壁颜色搭配起来,给人舒服的感觉,实木的储物柜实用又不碍位置,和电视机搭配的很好。

月星国际城-104平-北欧风格-餐厅.jpg 月星国际城-104平-北欧风格-餐厅2.jpg

餐厅区域采用了与茶几相仿的木质餐桌,搭配灰色的墙面,吊灯与壁画形成一个空间,整体与客厅空间相呼应,色彩统一,协调一致。完美的体现出北欧风格的特点

月星国际城-104平-北欧风格-卧室.jpg

卧室是一个重要的休息区域,所以实用性和实用率都是非常重要的。卧室整体明亮通透,床品与窗帘色彩一致,木质的床头与背景形成对比,显得特别温馨,打造出一个简洁、舒适的居住空间。

月星国际城-104平-北欧风格-卫生间.jpg

卫生间是最小的区域,所以墙面和地面选择了一样的瓷砖,让空间显得更大一些。灯光与地砖相呼应,让整个空间看起来简洁、温馨。

月星国际城-104平-北欧风格-厨房.jpg

厨房选用了U字型的设计及方便了活动空间又满足了日常功能性的需求,橱柜选择木质的门板作为装饰配上白色的石英石形成强烈的对比也给简洁的厨房增加了亮点,墙砖选择了偏灰色的大理石和暖色系地砖呼应,使整体风格上倾向于北欧风格。

月星国际城-104平-北欧风格-户型图.jpg

案例设计师

林凤设计师

设计师:林凤设计师

从业时间:7年

设计理念:专注做最自然的设计。

预约设计师

算算你家装修多少钱

报名即享丰厚赠品,品质装修

免费报价
咨询热线:400-656-9909
20190221103704574636.jpg

精品设计案例

20180612134930523248.jpg 服务号二维码.jpg