立即预约 立即预约
免费定制整装家居

免费定制整装家居

一站置家 全程无忧 一省到底
hide.png

当前位置: 首页 > 装修案例效果图 > 阳光家园

阳光家园 135平 现代简约风格效果图

收藏
案例风格 现代简约 案例户型 二居 案例面积 135平米
楼盘名称 阳光家园 设计师 林凤装饰设计师 案例类型 改善性住宅

设计理念:现代风格整体空间从设计到材质的选用,都呈现出既实用又时尚的折衷理念。结合本案暖灰色的主体基调,体现出业主的对生活精致,舒适的追求。

客厅
第1张
第2张
餐厅
第1张
第2张
卧室
第1张
卫生间
第1张
厨房
第1张
第2张
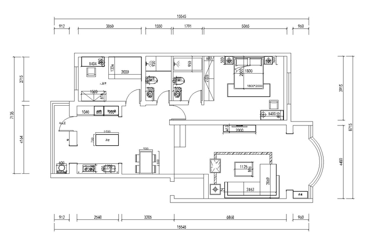
户型图
第1张
  • 案例详情

阳光家园-135平-现代风格-客厅1.jpg 阳光家园-135平-现代风格-客厅.jpg

客厅用暖灰色为基调,以时尚简约的家具为点缀。白净的色彩上,一丝黄色的晕染,一抹蓝色单椅的调和,搭配整体的直线边棚使整个空间更和谐雅致,茶几的摆件与沙发颜色统一上下呼应。

阳光家园-135平-现代风格-餐厅.jpg 阳光家园-135平-现代风格-餐厅1.jpg

餐厅风格继续延伸整体的色系搭配,餐桌跟客厅茶几都采用了深色的实木材质,都呈现出及实用又时尚的折衷理念,黄色的花卉使得典雅精致中带着一些惊喜与活泼感。

阳光家园-135平-现代风格-卧室.jpg

主卧室的设计总体来说大气素雅,背景墙与床头的结合既节省了空间,又使整个空间材质不在单调乏味。通顶的大衣柜实用,舒适。

阳光家园-135平-现代风格-卫生间.jpg

整个卫生间通过深浅砖的拼接进行了区域的划分,墙地颜色分区,定制手盆漂亮实用, 大面积的墙面镜子,增加了整个空间延伸感,更干净利落。

阳光家园-135平-现代风格-厨房.jpg 阳光家园-135平-现代风格-厨房1.jpg

厨房整体敞开设计大大的增加了厨房的空间,使光线更加通透,地面灰色地砖与客厅地板的颜色统一搭配浅色墙砖和蓝灰色橱柜使整个空间跟干净大气。

阳光家园-135平-现代风格-平面布置图.jpg

案例设计师

林凤装饰设计师

设计师:林凤装饰设计师

从业时间:8年

设计理念:设计源于生活,细节决定品质。

预约设计师

算算你家装修多少钱

报名即享丰厚赠品,品质装修

免费报价
咨询热线:400-656-9909
20190221103704574636.jpg

精品设计案例

20180612134930523248.jpg 服务号二维码.jpg