立即预约 立即预约
免费定制整装家居

免费定制整装家居

一站置家 全程无忧 一省到底
hide.png

当前位置: 首页 > 装修案例效果图 > 铁西檀府

铁西檀府 81平 北欧风格效果图

收藏
案例风格 北欧 案例户型 二居 案例面积 81平米
楼盘名称 铁西檀府 设计师 林凤装饰全案设计师 案例类型 婚房

设计理念:北欧风格的室内装修设计,大家首先想到的一定是简洁、功能性强而且贴近自然。北欧风格擅长以线条和色块来区分或者装饰空间。而且北欧人很愿意花时间在家与家人们交流,所以北欧风格的居室通过色彩在室内营造一种舒适温馨的气氛,让大家在交流的时候更加轻松惬意。

客厅
第1张
第2张
第3张
餐厅
第1张
卧室
第1张
第2张
卫生间
第1张
厨房
第1张
门厅
第1张
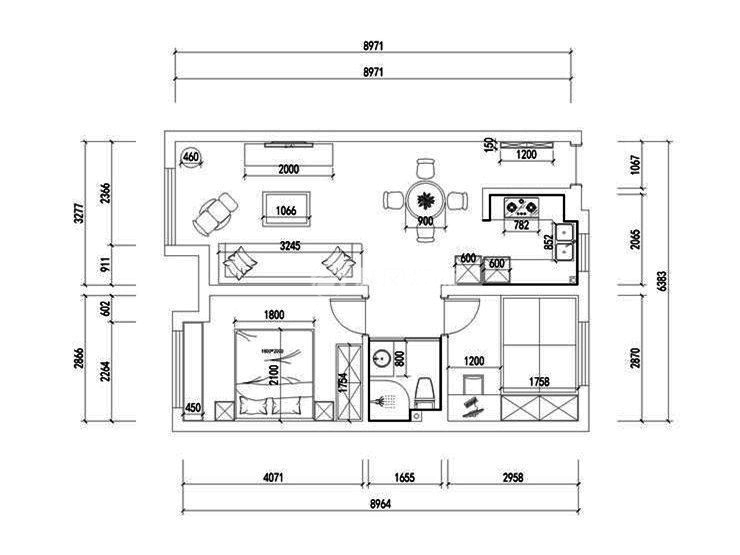
户型图
第1张
  • 案例详情

设计九部-刘泽-铁西檀府-81平-北欧风格-客厅.jpg 设计九部-刘泽-铁西檀府-81平-北欧风格-客厅1.jpg 设计九部-刘泽-铁西檀府-81平-北欧风格-首图.jpg

以灰色和木色为主色调,极简灰白的挂画搭配出北欧的简约风格,增加了女业主的指定的粉色单椅和星星抱枕,又让整个空间的增加了女性的柔美感。

设计九部-刘泽-铁西檀府-81平-北欧风格-餐厅.jpg

北欧表情的餐边柜,配上台灯花束,是Pink当下最流行的轻奢感。表达爱的方式有很多,可以是一个摆件,一副自画像,都能让空间变得丰富和耐人寻味。

设计九部-刘泽-铁西檀府-81平-北欧风格-次卧室.jpg 设计九部-刘泽-铁西檀府-81平-北欧风格-主卧.jpg

主卧延续了客厅的灰蓝调,搭配白粉色床品、圆形的镜子,个性的化妆椅,男业主喜欢的蓝色调,搭配女业主喜欢的粉色调,都体现着双方的相互尊重,使卧室更趋于融合。

设计九部-刘泽-铁西檀府-81平-北欧风格-卫生间.jpg

整体粘贴暖色瓷砖,干净而不失温馨。整体打造U型橱柜,提高整体空间利用率,橱柜以白为主,干净明亮。

设计九部-刘泽-铁西檀府-81平-北欧风格-厨房.jpg

卫生间采用了暖色系的瓷砖,主要是整洁大方,客户在卫生间不喜欢太繁琐。浴柜整体打造,洗手盆定制的台板,定制的台板将洗衣机包在里侧,空间布局合理。

设计九部-刘泽-铁西檀府-81平-北欧风格-玄关.jpg 设计九部-刘泽-铁西檀府-81平-北欧风格-平面图.jpg

案例设计师

林凤装饰全案设计师

设计师:林凤装饰全案设计师

从业时间:10年

设计理念:设计源于生活

预约设计师

算算你家装修多少钱

报名即享丰厚赠品,品质装修

免费报价
咨询热线:400-656-9909
20190221103704574636.jpg

精品设计案例

20180612134930523248.jpg 服务号二维码.jpg