立即预约 立即预约
免费定制整装家居

免费定制整装家居

一站置家 全程无忧 一省到底
hide.png

当前位置: 首页 > 装修案例效果图 > 尚景新世界

尚景新世界 166平 现代简约风格效果图

收藏
案例风格 现代简约 案例户型 三居 案例面积 166平米
楼盘名称 尚景新世界 设计师 林凤设计师 案例类型 改善性住宅

设计理念:设计是很私人的事儿,不追随大众思维,独立大众之外的符合业主的观点,大概是说设计和自我喜好无关,关乎在于是否、能否和业主的思维达到同频。

客厅
第1张
第2张
餐厅
第1张
卧室
第1张
卫生间
第1张
第2张
厨房
第1张
书房
第1张
门厅
第1张
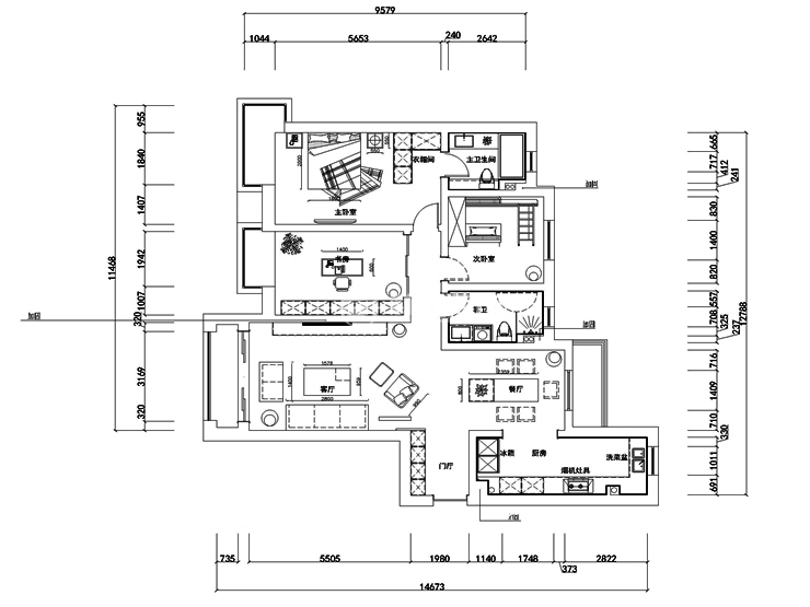
户型图
第1张
  • 案例详情

尚景新世界--166平--现代极简风格--客厅2.jpg 尚景新世界--166平--现代极简风格--首图.jpg

深色地面、白的墙面都是大块色彩的运用,白的线条,黑色线条横竖贯穿整个空间,咖啡几的不规则造型是简单有内涵,沙发的摆设是丰满空间,装饰柜子点缀装饰墙面。

尚景新世界--166平--现代极简风格--餐厅.jpg

简洁的餐厅,餐桌有个就好,不常用,灯具的选择是要线条感的灯具

尚景新世界--166平--现代极简风格--主卧室.jpg

卧室私人空间,喜欢干净简洁的,那么我们认真的把卧室做好,不庸俗、确温馨充满爱。

尚景新世界--166平--现代极简风格--客卫生间.jpg 尚景新世界--166平--现代极简风格--主卫生间.jpg

卫生间只是简单的让它与众不同,让它的简单,却又功能舒适,光杆韵味十足。

尚景新世界--166平--现代极简风格--厨房1.jpg

厨房灰色墙砖,不易脏,好清洗,橱柜依据原有空间尽量做到不浪费空间,使用舒适,功能齐全。

尚景新世界--166平--现代极简风格--书房.jpg 尚景新世界--166平--现代极简风格--玄关.jpg 尚景新世界--166平--现代极简风格--平面图.jpg

案例设计师

林凤设计师

设计师:林凤设计师

从业时间:10年

设计理念:

预约设计师

算算你家装修多少钱

报名即享丰厚赠品,品质装修

免费报价
咨询热线:400-656-9909
20190221103704574636.jpg

精品设计案例

20180612134930523248.jpg 服务号二维码.jpg