立即预约 立即预约
免费定制整装家居

免费定制整装家居

一站置家 全程无忧 一省到底
hide.png

当前位置: 首页 > 装修案例效果图 > 月星中央公园

月星中央公园 103平 现代简约风格效果图

收藏
案例风格 现代简约 案例户型 三居 案例面积 103平米
楼盘名称 月星中央公园 设计师 林凤设计师 案例类型 改善性住宅

设计理念:设计源于生活,生活因设计而改变,用有限的空间。做无限的设计,成就梦想之家。

客厅
第1张
第2张
第3张
第4张
餐厅
第1张
卧室
第1张
第2张
卫生间
第1张
厨房
第1张
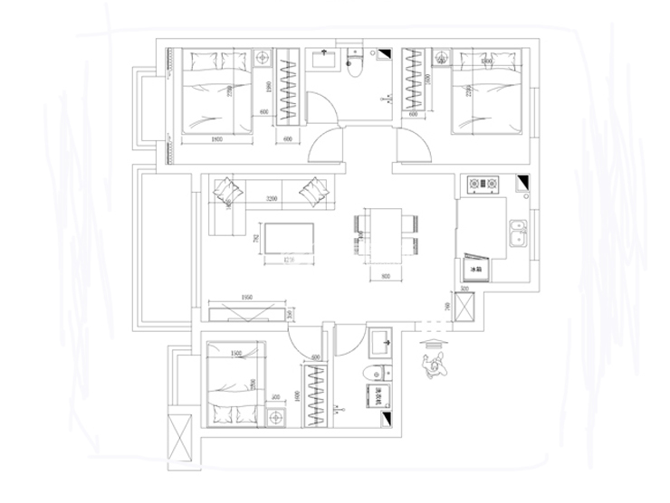
户型图
第1张
  • 案例详情

月星中央公司-103平-现代风格-电视背景墙.jpg 月星中央公司-103平-现代风格-客厅2.jpg 月星中央公司-103平-现代风格-客厅.jpg 月星中央公司-103平-现代风格-沙发背景墙.jpg

客厅整体以板木结合为主的家具,白色烤漆与深色木质纹理相结合,一深一浅的呼应,同时加入金色元素,整体展现出后现代风格的高端而不张扬的低调氛围。同时墙面的色彩运用AB面的乳胶漆,空间整体感觉活跃,在搭配上彩虹色的挂画,整体空间既有现代风格的 简约与大气,又有一些灵动的氛围。

月星中央公司-103平-现代风格-餐厅.jpg 月星中央公司-103平-现代风格-主卧.jpg 月星中央公司-103平-现代风格-儿童房.jpg

次卧是儿童房的展现,业主家是6岁的小女孩,所以采用女孩的经典色—粉色,渲染空间的浪漫主义。

月星中央公司-103平-现代风格-卫生间.jpg

卫生间设计师在马桶的位置做了一个造型处理,整体以浅色为主,深色加以点缀整体空间展现出卫生间的干净与整洁。

月星中央公司-103平-现代风格-厨房.jpg

厨房采用传统的封闭式厨房,由于厨房与客厅相连,真正意义的南北通透,所以厨房采用拉门,增大厨房与客厅的通透已经采光,同时厨房的门板色设计展现了后现代的低奢,呼应整体空间的风格。

月星中央公司-103平-现代风格-平面图.jpg

案例设计师

林凤设计师

设计师:林凤设计师

从业时间:5年

设计理念:设计源于生活,生活因设计而改变,用有限的空间。做无限的设计,成就梦想之家。

预约设计师

算算你家装修多少钱

报名即享丰厚赠品,享半价装修

免费报价
咨询热线:400-656-9909
20190221103704574636.jpg

精品设计案例

20180612134930523248.jpg 服务号二维码.jpg