立即预约 立即预约
免费定制整装家居

免费定制整装家居

一站置家 全程无忧 一省到底
hide.png

当前位置: 首页 > 装修案例效果图 > 远洋大河宸章

远洋大河宸章 99平 现代简约风格效果图

收藏
案例风格 现代简约 案例户型 三居 案例面积 99平米
楼盘名称 远洋大河宸章 设计师 林凤装饰设计师 案例类型 改善性住宅

设计理念:现代风格为主,简洁内敛的手法,利用家具和颜色做了空间的点缀烘托整体设计感,恰到理想化。

客厅
第1张
第2张
餐厅
第1张
卧室
第1张
卫生间
第1张
厨房
第1张
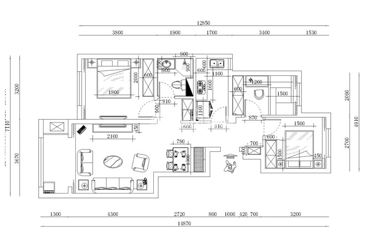
户型图
第1张
  • 案例详情

远洋大河宸章-99平-现代风格-客厅.jpg 远洋大河宸章-99平-现代风格-客厅1.jpg

客厅沙发背景连接餐区做了涂刷灰色的乳胶漆,电视背景墙灰色的颜色和两侧做了互补突出层次感,客厅设计了一个直线边棚中规中矩的层次感,局部原木色的家具,体现出现代的质感。

远洋大河宸章-99平-现代风格-餐厅.jpg

卡座的设计和吊柜的形式,体现了餐区的实用性,餐厅和客厅的家具运用原木色使空间有个整体感,并且卡座下面又增加了三个抽屉,也起到了实用性的作用。

远洋大河宸章-99平-现代风格-卧室.jpg

本色的墙面黑色的衣柜与客厅的格调一致,黄色饰品的点缀使空间更加生动活性。卧室的硬装设计很少,但是卧室的软装配饰很多,墙面的装饰品恰好与灯也起到了金属材质呼应的效果。

远洋大河宸章-99平-现代风格-卫生间.jpg

白色的墙面和浴屏的金属感使空间时尚现代,木质面的浴柜恰好与整体设计混合,更加的体现现代时尚感,同时浴屏的使用又起到了干湿分离的作用,很好的处理了地面上存水的问题。

远洋大河宸章-99平-现代风格-厨房.jpg

厨房砖选择白色的为了烘托一下橱柜,橱柜选择吸塑白黑色的搭配,因为年龄的关系考虑。

远洋大河宸章-99平-现代风格-平面图.jpg

案例设计师

林凤装饰设计师

设计师:林凤装饰设计师

从业时间:10年

设计理念:感受生活品质,设计空间生活。

预约设计师

算算你家装修多少钱

报名即享丰厚赠品,品质装修

免费报价
咨询热线:400-656-9909
20190221103704574636.jpg

精品设计案例

20180612134930523248.jpg 服务号二维码.jpg