立即预约 立即预约
免费定制整装家居

免费定制整装家居

一站置家 全程无忧 一省到底
hide.png

当前位置: 首页 > 装修案例效果图 > 万锦香樟树

万锦香樟树 85平 现代简约风格效果图

收藏
案例风格 现代简约 案例户型 二居 案例面积 85平米
楼盘名称 万锦香樟树 设计师 林凤装饰设计师 案例类型 婚房

设计理念:现代简约,整装出发,整体搭配不简单!

客厅
第1张
第2张
第3张
第4张
第5张
第6张
第7张
餐厅
第1张
卧室
第1张
卫生间
第1张
厨房
第1张
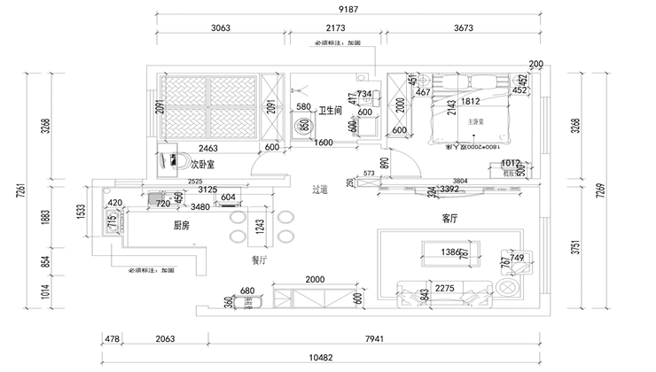
户型图
第1张
  • 案例详情

万锦香樟树- 85平-现代风格-电视背景.jpg 万锦香樟树- 85平-现代风格-电视背景2.jpg 万锦香樟树- 85平-现代风格-客厅全景.jpg 万锦香樟树- 85平-现代风格-沙发背景.jpg 万锦香樟树- 85平-现代风格-客厅全景2.jpg 万锦香樟树- 85平-现代风格-沙发背景墙2.jpg 万锦香樟树- 85平-现代风格-首图.jpg

客厅的颜色偏重,由于孩子和老人的意见不统一,设计师大胆的运用了材质和颜色的搭配结合,用草绿色的硅藻泥做的现代感很强的背景墙,沙发是布艺的还是皮质的客户还没有决定好,设计师推荐布艺沙发经济实惠,性价比高,搭配的地毯和电视柜的颜色现代感实足!对比效果明显!

万锦香樟树- 85平-现代风格-餐厅.jpg

本案没有正式的餐厅,橱柜是打到外面的,然后接的吧台和橱柜同样高度,然后用理石台面做的吧台当做两用的餐厅,质感非常强烈!

万锦香樟树- 85平-现代风格-卧室.jpg

卧室里面的搭配比外面要简洁明亮很多,床品,衣柜挂画灯具整体的色彩都比较和谐,富有活力!

万锦香樟树- 85平-现代风格-卫生间.jpg

卫生间采用是深灰色的色调墙砖原木色的洁具,客户喜欢稍微暗点的感觉所有卫生间没有用太浅太亮的砖做主色,对比度比较突出!

万锦香樟树- 85平-现代风格-厨房.jpg

厨房的空间采用敞开式的格局,90后在家做饭不是特别多,对厨房的效果要求的比较高,所以橱柜的材质选的比较亮颜色呢有事胡桃色,和爵士白的墙砖形成鲜明的对比,而且质感都比较亮!效果不错!

万锦香樟树- 85平-现代风格-平面布局.jpg

案例设计师

林凤装饰设计师

设计师:林凤装饰设计师

从业时间:7年

设计理念:设计源于生活,生活因设计而改变!成就空间和谐,让设计物有所值!让细节缔造完美!

预约设计师

算算你家装修多少钱

报名即享丰厚赠品,享半价装修

免费报价
咨询热线:400-656-9909
20190221103704574636.jpg

精品设计案例

20180612134930523248.jpg 服务号二维码.jpg