立即预约 立即预约
免费定制整装家居

免费定制整装家居

一站置家 全程无忧 一省到底
hide.png

当前位置: 首页 > 装修案例效果图 > 碧桂园繁华里

碧桂园繁华里 135平 新中式风格效果图

收藏
案例风格 新中式 案例户型 三居 案例面积 135平米
楼盘名称 碧桂园繁华里 设计师 林凤装饰精英设计师 案例类型 婚房

设计理念:为了满足业主对淡雅,自然的生活追求,以诗画山水为切入点,回到家中亦如置身山水世界之中。

客厅
第1张
第2张
第3张
餐厅
第1张
卧室
第1张
卫生间
第1张
厨房
第1张
过廊
第1张
第2张
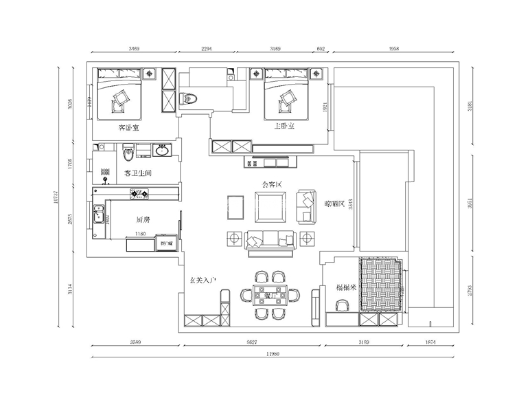
户型图
第1张
  • 案例详情

碧桂园繁华里-135平-新中式风格-客厅2.jpg 碧桂园繁华里-135平-新中式风格-客厅.jpg 碧桂园繁华里-135平-新中式风格-客厅3.jpg

在室内色彩方面,本案以现代中式的气氛浓郁的木色结合淡雅白勾勒。本设计天花结合传统中国格栏结合现代灯带修饰,使得整个天花表现丰富,相互呼应,简而不陋。电视背景墙采用乳白色条纹大理石结合中式传统镂空花格,现代与传统的完美搭配。餐厅侧面传统的镂空月亮门造型设计,使之融入餐厅空间,古香古色,苏州园林感凸显。

碧桂园繁华里-135平-新中式风格-餐厅.jpg

餐桌采用红木材料,凸显厚重的中式礼仪。墙面点缀水墨画荷花,配以出淤泥不然尘埃,清新自成一派寓意,淡淡荷花香气围绕餐桌,美食与美景交相辉映。引景入室,由景及人。让室内色彩统一,言有尽而意无声。

碧桂园繁华里-135平-新中式风格-卧室.jpg

卧室床头背景墙采用现代软包与中式传统花格相结合的设计,结合现代的家具配饰,使整个居室在浓浓的古韵中渗透着现代的气息,舒适而恬静。斯人睡梦里,宁静自得。置身于恬静与雅致之中,喜气自来。

碧桂园繁华里-135平-新中式风格-卫生间.jpg

将家具全部放在一侧,把空间让出,开门即是明朗,出门亦是坦途。现代化家具自有现代化方式。淋浴用浴屏隔断。保护了隐私成全了空间。

碧桂园繁华里-135平-新中式风格-厨房.jpg

厨房采用U型布局、成环抱之势与吊顶合围。白色大理石台面与木色橱柜结合。使整个厨房贵气十足,大气尽显。同时橱柜采用欧式的顶及吊灯,彰显中式包容性。

碧桂园繁华里-135平-新中式风格-过廊.jpg 碧桂园繁华里-135平-新中式风格-过廊2.jpg 碧桂园繁华里-135平-新中式风格-平面图.jpg

案例设计师

林凤装饰精英设计师

设计师:林凤装饰精英设计师

从业时间:9年

设计理念:艺术充满生活 设计无处不在

预约设计师

算算你家装修多少钱

报名即享丰厚赠品,品质装修

免费报价
咨询热线:400-656-9909
20190221103704574636.jpg

精品设计案例

20180612134930523248.jpg 服务号二维码.jpg