立即预约
免费定制整装家居
一站置家 全程无忧 一省到底
设计理念:以北欧风格的设计手法,展现不同的客厅。
案例详情
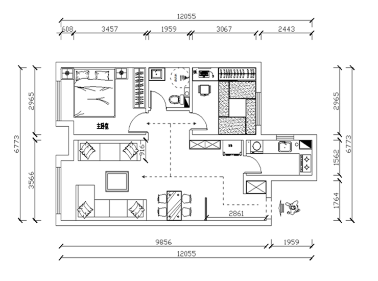
此次客厅的设计改变了人们对客厅古板的想法,现在年轻人的生活基本已经脱离了电视,大部分时间都是 手机,电脑,平板,所以对客厅电视的存在显得不是那么必要,所以将客厅的沙发围成团座的感觉,明确来来讲,就是一家人的起居室,对坐的沙发给人一种极强的对话感,使得对坐的两个人或者多个人把手里的平板 手机放下,多用言语交流沟通,让感情日益升温,常常久久。
餐桌在现在的生活里面被很多种形式代替,吧台,倒台,茶几,卡座,但是在我感觉,这些在形式或效果上可能要好过餐桌,但是这些都满足不了一家人其乐融融团座在一起的感觉
主卧室占据了除了客厅之外一个家最主要功能,住,装修购买家具的所有品类里面,最重要应该就是穿垫,一天24小时,而8个小时的睡眠决定了你一天的生活状态,在床头背景的颜色上采用了淡淡的蓝色,墙壁呼应床头,连接到地面的地毯,使得卧室清爽自然,仿佛回到大自然怀抱下。
卫生间比较宽敞,但是配以暖色的墙地砖,使整个空间不至于太过空旷,手盆上方的镜子让整个卫生间更加的大气,流露。
厨房瓷砖采用今年比较流行的鱼肚白,搭配暖白的橱柜,使得厨房明亮简洁,地面的木纹砖呼应客厅的木纹颜色,使得明亮简洁的同时,更增加了北欧厨房的特点,将北欧的木纹颜色巧妙的融入厨房。
精品设计案例
设计说明:
三室两厅一厨两卫,高层整体采用美式风格,色调以深色为主,体现美式的居家感和温馨感。
设计说明:
本案业主为年轻时尚小两口,所以我们考虑到未来想要给未来宝宝一个温馨舒适的一个房间,所以本案整体采用现代风格的手法,运用颜色,来打造整体空间的设计感及时尚感
设计说明:
本案以北欧风格为主题的设计,北欧风格能以现代、简洁、自然的特点俘获人心,所营造出来的生活氛围会让人倍感舒适与自在。
设计说明:
客户是一名成功人士,对于家的执念就是简单干净,客户衣服比较多,所以把每个空间都做了大衣柜,并且融入到设计里