立即预约 立即预约
免费定制整装家居

免费定制整装家居

一站置家 全程无忧 一省到底
hide.png

当前位置: 首页 > 装修案例效果图 > 新加坡花园

新加坡花园 98平 现代简约风格效果图

收藏
案例风格 现代简约 案例户型 三居 案例面积 98平米
楼盘名称 新加坡花园 设计师 林凤装饰设计师 案例类型 改善性住宅

设计理念:本案采用的是现代简约的手法,在注重功能性和便利性的前提下,尽最大的发挥空间给人的服务性,所以在设计的前期设计师也用鸟瞰图的形式,呈现了整体布局,全案考虑的做法,不同于大众设计都是一个点,一个位置的设计,容易造成装修不协调,层次不清晰和让业主迷惑的情况。

客厅
第1张
第2张
餐厅
第1张
卧室
第1张
第2张
卫生间
第1张
厨房
第1张
书房
第1张
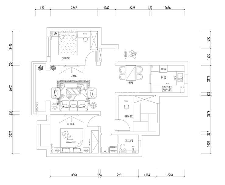
户型图
第1张
  • 案例详情

新加坡花园-98平-现代风格-客厅.jpg 新加坡花园-98平-现代风格-沙发墙.jpg

客厅空间采取了简约化的理念,但背景墙有着比较大的一个问题,由于一个卧室的门是开在电视墙的位置,所以在做装饰和视觉比例会很不协调,本案采用了隐形墙的设计理念,恰到好处的解决了视觉短的问题,让房主十分高兴,同时配合简约的布艺沙发与鹅黄相间的地毯 ,给人带来了家的温馨与和谐。

新加坡花园-98平-现代风格-餐厅.jpg

餐厅空间原本是比较常规的格局,在不影响功能的情况下设在了厨房之前,这样的设计会让生活上更加的便利,同时动线也十分清晰,餐桌上搭配鹅黄色抽象挂画配合海蓝色餐椅,让就餐空间也变得愉悦。

新加坡花园-98平-现代风格-主卧室.jpg 新加坡花园-98平-现代风格-次卧室.jpg

卧室空间最需要的是安静睡眠,这里不需要浮夸的设计和造型,一盏台灯,一抹温馨的挂画就会让卧室安逸自然。次卧室同样采用简约自然的装饰,木色家具和白色墙面让简单的配色融入生活,在墙面添上几朵装饰贴饰,让空间里散发出大自然的气息。

新加坡花园-98平-现代风格-卫生间.jpg

本案卫生间除了满足正常功能的同时,在注重生活便利性上也做了改动,由传统格局变成了干湿分离的形式,其实干湿分离在现代生活中越来越变得不可或缺。对于只有一个卫生间来说在生活便利上是无法替代的。

新加坡花园-98平-现代风格-厨房.jpg

厨房空间大多都采用推拉设计,目的是让开关门都不占用空间,橱柜材质选用了木色纹理的平面设计,这样的好处是易于打理,木色也是自然的富有生命力的色彩,让空间同一和谐贯通才是设计师的中心思想。

新加坡花园-98平-现代风格-书房.jpg

书房空间本案采取的是综合手法,既注重读写工作的功能,同时也加入了地榻,让久坐之后还可以躺下放松,这样劳逸结合也体现了生活创意,地台的另一个优势是在家里有客人的时候,还能暂时用作客卧,也满足了业主的更多需求。

新加坡花园-98平-现代风格-平面.jpg

案例设计师

林凤装饰设计师

设计师:林凤装饰设计师

从业时间:14年

设计理念:设计生活空间 提升品质生活

预约设计师

算算你家装修多少钱

报名即享丰厚赠品,享半价装修

免费报价
咨询热线:400-656-9909
20190221103704574636.jpg

精品设计案例

20180612134930523248.jpg 服务号二维码.jpg