立即预约 立即预约
免费定制整装家居

免费定制整装家居

一站置家 全程无忧 一省到底
hide.png

当前位置: 首页 > 装修案例效果图 > 金地铂悦

金地铂悦 110平 现代简约风格效果图

收藏
案例风格 现代简约 案例户型 三居 案例面积 110平米
楼盘名称 金地铂悦 设计师 林凤设计师 案例类型 改善性住宅

设计理念:本案装修风格定位为现代风格,地面为理石花纹的抛釉砖,搭配黑色皮质的家具。软装饰搭配丝绒,金色丝线等,饰品摆件以粗纹理的瓷器和多色彩的配饰。电视背景墙用黑镜和亚光米色皮质背景墙,大面积中性色配高纯度色彩是现代风格的特征。

客厅
第1张
第2张
第3张
第4张
第5张
餐厅
第1张
卧室
第1张
卫生间
第1张
厨房
第1张
过廊
第1张
第2张
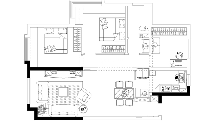
户型图
第1张
  • 案例详情

金地铂悦-110平-现代风格-客厅01.jpg 金地铂悦-110平-现代风格-客厅03.jpg 金地铂悦-110平-现代风格-客厅05.jpg 金地铂悦-110平-现代风格-客厅04.jpg 金地铂悦-110平-现代风格-客厅02.jpg

客厅的电视背景墙是经过扩建的,达到了很好的比例关系。两侧为黑色烤漆玻璃,中间配亚光PU硬包,高亮与亚光搭配,层次感与拉伸感非常好,白色电视柜与黑色家具又做了颜色上的对比,增加了层次。根据整体风格沙发选为亮皮黑色材质,灯光为暖色光,减少了黑色与白色搭配造成的冰冷感

金地铂悦-110平-现代风格-餐厅01.jpg

经过扩建厨房后,增加了玄关的储物空间,还根据餐厅的灯位与餐桌的关系预留出餐桌的位置,做到餐厅灯位与客厅灯位在一条中轴线上。餐桌款式以黑色烤漆为主。

金地铂悦-110平-现代风格-卧室.jpg

主卧室柜体以冷色为主,因为没有床头柜的位置,所以在床头位置多做了一层薄柜做储物空间,柜体门板为灰绿色,衣柜也用同样的烤漆材质,用灰蓝色与床头柜做区分。在光线分布上考虑业主不需要主灯照明,所以需要考虑辅助光源分布,一是在床头柜下方做的LED光带照明,二是在床头一侧做装饰性吊灯,而在床尾墙角做的明装筒灯,光源分布合理。

金地铂悦-110平-现代风格-卫生间.jpg

卫生间太小,烟道与风道位置很尴尬,正好在坐便与手盆中间的位置,采用干湿分离的方式最佳,但还要考虑瓷砖铺贴位置,与石膏的施工区域划分,及两侧门口宽度的一致性。对于手盆位置进行了光线优化,保证手盆位置的光线充足。

金地铂悦-110平-现代风格-厨房.jpg

厨房经过扩建,拉长了厨房空间。在拉长的空间里放置了双开门大冰箱和滚筒洗衣机,也增加了玄关衣柜的宽度。橱柜采用白色烤漆柜门,与格子墙砖搭配,增加现代感。.

金地铂悦-110平-现代风格-过廊01.jpg 金地铂悦-110平-现代风格-过廊02.jpg 金地铂悦-110平-现代风格-平面.jpg

案例设计师

林凤设计师

设计师:林凤设计师

从业时间:20年

设计理念:您的梦想由我来实现。

预约设计师

算算你家装修多少钱

报名即享丰厚赠品,享半价装修

免费报价
咨询热线:400-656-9909
20190221103704574636.jpg

精品设计案例

20180612134930523248.jpg 服务号二维码.jpg