立即预约 立即预约
免费定制整装家居

免费定制整装家居

一站置家 全程无忧 一省到底
hide.png

当前位置: 首页 > 装修案例效果图 > 亚美丽佳

亚美丽佳 93平 北欧风格效果图

收藏
案例风格 北欧 案例户型 三居 案例面积 93平米
楼盘名称 亚美丽佳 设计师 魏东超 案例类型 改善性住宅

设计理念:借用现代美学设计以及严谨细致的工艺手法,通过不同的块面表现形式来呈现空间的明快和简洁的个性。

客厅
第1张
第2张
第3张
卧室
第1张
卫生间
第1张
过廊
第1张
第2张
第3张
第4张
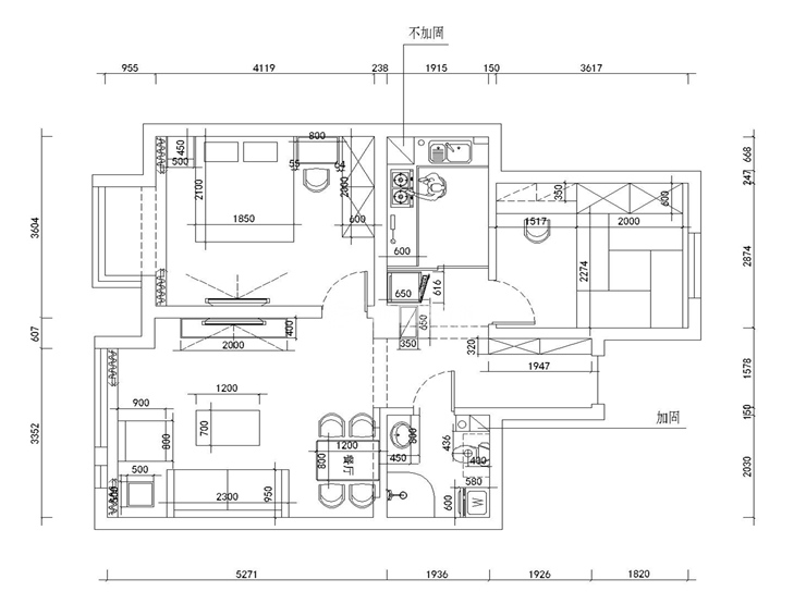
户型图
第1张
  • 案例详情

亚美丽佳-93平-北欧风格-客厅2.jpg 亚美丽佳-93平-北欧风格-客厅.jpg 亚美丽佳-93平-北欧风格—客厅3.jpg

淡灰作为主色调,搭配极富质感的当代艺术感的吧台构出空间的精致与内涵,将冷静而理性的格局重新演绎。

亚美丽佳-93平-北欧风格-卧室.jpg

结合丹麦现代家居的设置,为创造出细致的景深层次,给予静谧而又不失优雅婉约的空间感受

亚美丽佳-93平-北欧风格-卫生间.jpg 亚美丽佳-93平-北欧风格—过廊.jpg 亚美丽佳-93平-北欧风格——过廊.jpg 亚美丽佳-93平-北欧风格—过廊2.jpg 亚美丽佳-93平-北欧风格——过廊3.jpg 亚美丽佳-93平-北欧风格-户型图.jpg

案例设计师

魏东超

设计师:魏东超

从业时间:14年

设计理念:在有限的空间里创造无限的可能

预约设计师

算算你家装修多少钱

报名即享丰厚赠品,享半价装修

免费报价
咨询热线:400-656-9909
20190221103704574636.jpg

精品设计案例

20180612134930523248.jpg 服务号二维码.jpg