立即预约 立即预约
免费定制整装家居

免费定制整装家居

一站置家 全程无忧 一省到底
hide.png

当前位置: 首页 > 装修案例效果图 > 碧桂园公园里

碧桂园公园里 168平 美式风格效果图

收藏
案例风格 美式 案例户型 三居 案例面积 168平米
楼盘名称 碧桂园公园里 设计师 白涵琦 案例类型 改善性住宅

设计理念:让设计充满艺术,让艺术赞美生活。

客厅
第1张
第2张
餐厅
第1张
第2张
第3张
卧室
第1张
第2张
第3张
卫生间
第1张
第2张
第3张
厨房
第1张
儿童房
第1张
第2张
衣帽间
第1张
门厅
第1张
第2张
第3张
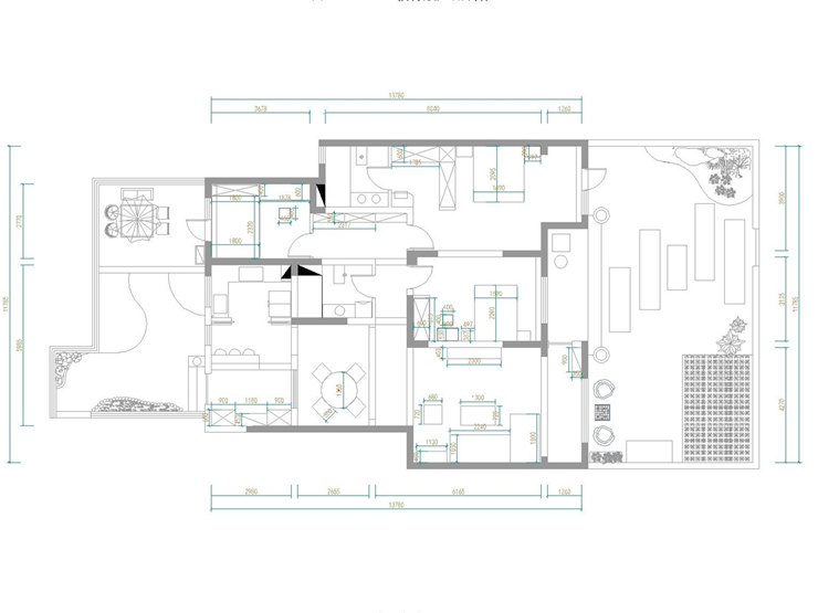
户型图
第1张
  • 案例详情

碧桂园公园里-168平-美式风格-客餐厅.jpg 碧桂园公园里-168平-美式风格-客厅-首图.jpg

采用嵌入式石膏吊顶,再搭配精致的水晶吊顶,从而营造出一种怀旧、浪漫的感觉。大理石主要作为地面装饰材料,光泽感极佳。在沙发区也可以铺上大幅地毯,这样会使空间区域划分更加清晰。另外,色彩鲜明的组合沙发以及茶几都具有上乘的质感,让美式古典风格得以进一步的彰显。

碧桂园公园里-168平-美式风格-餐厅.jpg 碧桂园公园里-168平-美式风格-餐厅(1).jpg 碧桂园公园里-168平-美式风格-餐厅(2).jpg

圆形的造型棚加上独特的花鸟壁纸,强调出餐厅空间的所属范围。粗犷、大气的美式餐桌椅,搭配以复古造型的角几会让人迷失在时光隧道中。

碧桂园公园里-168平-美式风格-主卧室.jpg 碧桂园公园里-168平-美式风格-主卧室(1).jpg 碧桂园公园里-168平-美式风格-榻榻米.jpg

卧室是以功能性和实用舒适度为主要的设计理念。在卧室内采用灯光柔和的吊灯,这种非炫目式灯光,使空间显得温馨舒适。在饰品布置上,大多都是用成套的布艺来装饰房间的。

碧桂园公园里-168平-美式风格-餐厅(2).jpg 碧桂园公园里-168平-美式风格-卫生间(1).jpg 碧桂园公园里-168平-美式风格-卫生间.jpg 碧桂园公园里-168平-美式风格-厨房.jpg 碧桂园公园里-168平-美式风格-儿童房(1).jpg 碧桂园公园里-168平-美式风格-儿童房.jpg 碧桂园公园里-168平-美式风格-衣帽间.jpg 碧桂园公园里-168平-美式风格-玄关(1).jpg 碧桂园公园里-168平-美式风格-玄关(2).jpg 碧桂园公园里-168平-美式风格-玄关.jpg 碧桂园公园里-168平-美式风格-户型图.jpg

案例设计师

白涵琦

设计师:白涵琦

从业时间:10年

设计理念:设计实现客户家居梦想

预约设计师

算算你家装修多少钱

报名即享丰厚赠品,品质装修

免费报价
咨询热线:400-656-9909
20190221103704574636.jpg

精品设计案例

20180612134930523248.jpg 服务号二维码.jpg