立即预约 立即预约
免费定制整装家居

免费定制整装家居

一站置家 全程无忧 一省到底
hide.png

当前位置: 首页 > 装修案例效果图 > 其仕盛和祥

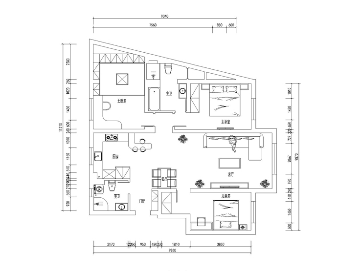
其仕盛和祥 130平 现代简约风格效果图

收藏
案例风格 现代简约 案例户型 三居 案例面积 130平米
楼盘名称 其仕盛和祥 设计师 林凤设计师 案例类型 婚房

设计理念:一个家,一段梦,一种心境,一种生活方式,发现最美的家,过诗一般的生活。

  • 案例详情

其仕盛和祥-130平-后现代风格-客厅2.jpg 其仕盛和祥-130平-后现代风格-客厅3.jpg 其仕盛和祥-130平-后现代风格-客厅.jpg 其仕盛和祥-130平-后现代风格-客厅4.jpg 其仕盛和祥-130平-后现代风格-客厅5.jpg

以黑白为硬装部分的主色,咖色系的软装为辅。让整个居家的色调非常舒适和平稳。不会给人带来冰冷的居家感觉。

其仕盛和祥-130平-后现代风格-餐厅2.jpg 其仕盛和祥-130平-后现代风格-餐厅.jpg

设计时候更倾向于餐厅实用功能,在设计时候也都充分地展现了这种设计理念,与居家装修的其他功能区也都形成了很好的搭配给予业主更多舒适与美好的生活感受。

其仕盛和祥-130平-后现代风格-次卧.jpg 其仕盛和祥-130平-后现代风格-次卧2.jpg 其仕盛和祥-130平-后现代风格-次卧3.jpg 其仕盛和祥-130平-后现代风格-次卧4.jpg 其仕盛和祥-130平-后现代风格-主卧.jpg 其仕盛和祥-130平-后现代风格-次卧5.jpg 其仕盛和祥-130平-后现代风格-主卧2.jpg

大面积的灰色和棕色,以期创造一种溶感性与理性、集传统与现代、揉大众与行家于一体的“亦此亦彼”的形象。将古典与现代,传统与时尚的元素兼容并蓄,既对立又统一。

其仕盛和祥-130平-后现代风格-客卫.jpg 其仕盛和祥-130平-后现代风格-客卫2.jpg 其仕盛和祥-130平-后现代风格-客卫3.jpg 其仕盛和祥-130平-后现代风格-主卫.jpg 其仕盛和祥-130平-后现代风格-主卫2.jpg 其仕盛和祥-130平-后现代风格-主卫3.jpg 其仕盛和祥-130平-后现代风格-主卫4.jpg 其仕盛和祥-130平-后现代风格-吧台2.jpg 其仕盛和祥-130平-后现代风格-吧台.jpg 其仕盛和祥-130平-后现代风格-厨房.jpg 其仕盛和祥-130平-后现代风格-玄关.jpg 其仕盛和祥-130平-后现代风格-户型图.jpg

案例设计师

林凤设计师

设计师:林凤设计师

从业时间:12年

设计理念:让设计成为艺术,让艺术进入生活。

预约设计师

算算你家装修多少钱

报名即享丰厚赠品,品质装修

免费报价
咨询热线:400-656-9909
20190221103704574636.jpg

精品设计案例

20180612134930523248.jpg 服务号二维码.jpg