立即预约 立即预约
免费定制整装家居

免费定制整装家居

一站置家 全程无忧 一省到底
hide.png

当前位置: 首页 > 装修案例效果图 > 龙湖唐宁ONE

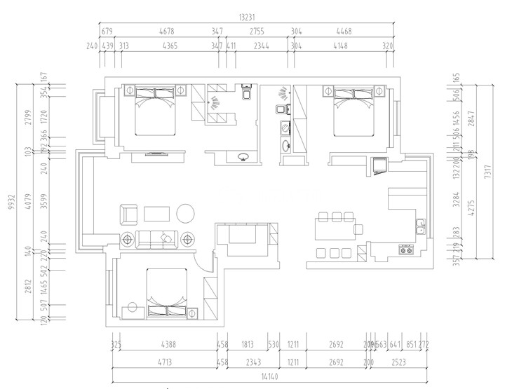
龙湖唐宁ONE 130平 混搭风格效果图

收藏
案例风格 混搭 案例户型 三居 案例面积 130平米
楼盘名称 龙湖唐宁ONE 设计师 林凤设计师 案例类型 改善性住宅

设计理念:本案例定位为混搭风格,为了整体空间大小,家具主要采用深色实木家具和白色的柜体搭配,并在空间上考虑到户型的情况和业主想法,重点在实用性和储藏空间下了很大的功夫。

客厅
第1张
餐厅
第1张
卧室
第1张
第2张
卫生间
第1张
厨房
第1张
儿童房
第1张
衣帽间
第1张
户型图
第1张
  • 案例详情

龙湖唐宁ONE-130平-混搭风格-客厅.jpg

客厅我们采用灰棕色系的措纹瓷砖,电视背景墙运用硅藻泥砖型图案,使墙面更加立体。

龙湖唐宁ONE-130平-混搭风格-餐厅.jpg

中式家具是空间更加有庄重,运用蓝色的桌旗做为点缀,与厨房的橱柜颜色相呼应。

龙湖唐宁ONE-130平-混搭风格-卧室1.jpg 龙湖唐宁ONE-130平-混搭风格-卧室2.jpg

卧室首先要满足舒适度,颜色以暖色为主,使空间更加温馨,抱枕加一些跳跃颜色使空间更加活波。

龙湖唐宁ONE-130平-混搭风格-卫生间.jpg

卫生间搭配灰色的瓷砖与白色陶瓷相结合,使空间层次分明。

龙湖唐宁ONE-130平-混搭风格-厨房.jpg

厨房的面积也不是很大,因此厨房的设计除了效果以外就是储物空间了,但凡有能做柜子的地方,在不影响效果的前提下,都做上了储物柜,增加了卡座也增加了储物,

龙湖唐宁ONE-130平-混搭风格-儿童房.jpg 龙湖唐宁ONE-130平-混搭风格-衣帽间.jpg 龙湖唐宁ONE-130平-混搭风格-平面图.jpg

案例设计师

林凤设计师

设计师:林凤设计师

从业时间:8年

设计理念:合理划分空间,让设计融入生活,营造自然,品味,格调。

预约设计师

算算你家装修多少钱

报名即享丰厚赠品,品质装修

免费报价
咨询热线:400-656-9909
20190221103704574636.jpg

精品设计案例

20180612134930523248.jpg 服务号二维码.jpg