立即预约 立即预约
免费定制整装家居

免费定制整装家居

一站置家 全程无忧 一省到底
hide.png

当前位置: 首页 > 装修案例效果图 > 金地铁西檀府

金地铁西檀府 90平 美式风格效果图

收藏
案例风格 美式 案例户型 二居 案例面积 90平米
楼盘名称 金地铁西檀府 设计师 林凤设计师 案例类型 改善性住宅

设计理念:本案例定位为简美风格,为了整体空间大小,家具主要采用深色实木家具和白色的柜体搭配,并在空间上考虑到户型的情况和业主想法,重点在实用性和储藏空间下了很大的功夫。

客厅
第1张
第2张
第3张
第4张
餐厅
第1张
卧室
第1张
卫生间
第1张
厨房
第1张
第2张
门厅
第1张
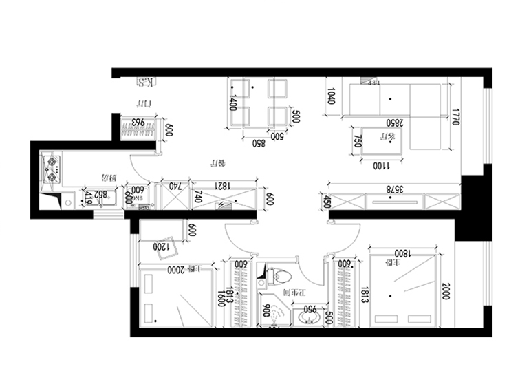
户型图
第1张
  • 案例详情

金地铁西檀府-90平-简美风格-客厅1.jpg 金地铁西檀府-90平-简美风格-客厅3.jpg 金地铁西檀府-90平-简美风格-客厅2.jpg -金地铁西檀府-90平-简美风格-客厅3.jpg

客厅我们采用灰棕色系的措纹地板,电视背景利用组合柜的形式来增加储藏和收纳空间,沙发背景利用简单淡灰色与地面想呼应,棚顶直接用成品石膏线进行归方,这样墙面与天棚交相辉映,从简至繁。

金地铁西檀府-90平-简美风格-餐厅.jpg

餐厅空间不是很大,不能放在厨房门口位置,这里一定要注意餐桌尺寸,利用好空间位置合理应用布局。

金地铁西檀府-90平-简美风格-主卧室.jpg 金地铁西檀府-90平-简美风格-卫生间.jpg

卫生间内部结构比较合理,我们利用暖色系AB版瓷砖来装饰卫生间空间,使卫生间空间上不会感 觉到狭小反而错落有致。

金地铁西檀府-90平-简美风格-厨房.jpg 金地铁西檀府-90平-简美风格-厨房门口.jpg

厨房的面积也不是很大,因此厨房的设计除了效果以外就是储物空间了,但凡有能做柜子的地方,在不影响效果的前提下,设计师都为房主做上了储物柜,遇到窗口不能放吊柜的地方,就利用隔板代替。

金地铁西檀府-90平-简美风格-门厅.jpg 金地铁西檀府-90平-简美风格-平面图.jpg

案例设计师

林凤设计师

设计师:林凤设计师

从业时间:13年

设计理念:一切随心,用心去感悟空间

预约设计师

算算你家装修多少钱

报名即享丰厚赠品,品质装修

免费报价
咨询热线:400-656-9909
20190221103704574636.jpg

精品设计案例

20180612134930523248.jpg 服务号二维码.jpg