立即预约 立即预约
免费定制整装家居

免费定制整装家居

一站置家 全程无忧 一省到底
hide.png

当前位置: 首页 > 装修案例效果图 > 保工印象

保工印象 122平 现代简约风格效果图

收藏
案例风格 现代简约 案例户型 三居 案例面积 122平米
楼盘名称 保工印象 设计师 李雪 案例类型 婚房

设计理念:现代简约风格在处理空间方面强调室内空间宽敞、室内通透,最大限度引入自然光。该案例以色彩搭配为亮点,为业主创造出舒适、温馨的居住氛围。

客厅
第1张
第2张
餐厅
第1张
第2张
卧室
第1张
卫生间
第1张
厨房
第1张
书房
第1张
儿童房
第1张
第2张
衣帽间
第1张
过廊
第1张
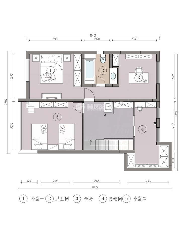
户型图
第1张
第2张
  • 案例详情

保工印象-122平-现代风格-客厅2.jpg 保工印象-122平-现代风格-客厅1.jpg

客厅沙发采用蓝色为主体配上点缀色,绅士风度与活力并存,木色茶几和绿植的点缀更是为家里添了一份生气,角几的设计也解决了茶几死角的问题。利用高举架的特点,把电视放在楼梯下,节省空间的同时又解决了楼梯下不好点缀的尴尬问题。

保工印象-122平-现代风格-餐厅.jpg 保工印象-122平-现代风格-餐厅2.jpg

采用圆桌,这样不但不会打乱动线,而且朋友来了,有围绕一起,其乐融融的感觉,绿色的边柜与黄色的墙面交相呼应,打造一个温馨充满生气的用餐环境。

保工印象-122平-现代风格-卧室.jpg

主卧为女主人设计梳妆台,床上则是用上业主父母赠送的床品,床头两边圆几上的植物,与床头挂画和花型吊灯互为点缀,让本为简单的卧室,变得更有生机。

保工印象-122平-现代风格-卫生间.jpg

卫生间以白色为主体,整个卫生间非常明亮整洁,木制收纳格,更是在整洁干净上增添了一份温馨。

保工印象-122平-现代风格-厨房.jpg

简单的颜色打造出干净整洁的环境,超大的操作台面,足够坐上一桌子美味佳肴招待来宾。

保工印象-122平-现代风格-书房.jpg 保工印象-122平-现代风格-儿童房.jpg 保工印象-122平-现代风格-儿童房2.jpg 保工印象-122平-现代风格-衣帽间.jpg 保工印象-122平-现代风格-过廊.jpg 保工印象-122平-现代风格-1层平面图.jpg 保工印象-122平-现代风格-2层平面图.jpg

案例设计师

李雪

设计师:李雪

从业时间:6年

设计理念:设计源于生活,而又升华于生活。

预约设计师

算算你家装修多少钱

报名即享丰厚赠品,品质装修

免费报价
咨询热线:400-656-9909
20190221103704574636.jpg

精品设计案例

20180612134930523248.jpg 服务号二维码.jpg