立即预约 立即预约
免费定制整装家居

免费定制整装家居

一站置家 全程无忧 一省到底
hide.png

当前位置: 首页 > 装修案例效果图 > 格林喜鹊花园

格林喜鹊花园 73平 美式风格效果图

收藏
案例风格 美式 案例户型 二居 案例面积 73平米
楼盘名称 格林喜鹊花园 设计师 林凤设计师 案例类型 婚房

设计理念:本案定义为美式风格,设计师主材选用混水漆护墙板、水晶玻璃灯,美克美家家具、绒布窗帘等,营造出一种精致有品的轻奢家居环境。将对生活的热情与积极的生活态度以不同的方式融入到整个空间设计之中,以此,诠释出作品的设计理念:“美而不艳俗,华而不招摇”的倾城之美。

客厅
第1张
第2张
第3张
第4张
第5张
餐厅
第1张
卧室
第1张
第2张
第3张
卫生间
第1张
厨房
第1张
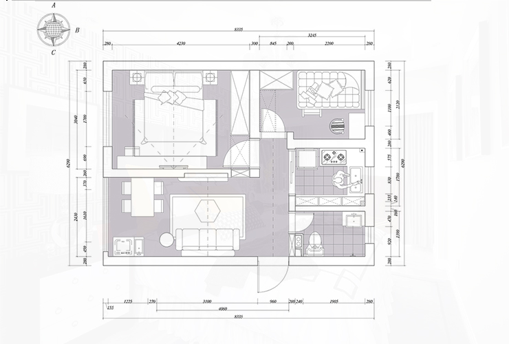
户型图
第1张
  • 案例详情

格林喜鹊花园-73平-美式风格-客厅.jpg 格林喜鹊花园-73平-美式风格-客厅1.jpg 格林喜鹊花园-73平-美式风格-客厅2.jpg 格林喜鹊花园-73平-美式风格-客厅3.jpg 格林喜鹊花园-73平-美式风格-客厅4.jpg

美式壁炉造型的电视柜,简单的对称布置与色彩穿插,不同程度的蓝色与金属色的对比让空间显得格外的温馨、稳重、雅致。

格林喜鹊花园-73平-美式风格-餐厅.jpg 格林喜鹊花园-73平-美式风格-卧室1.jpg 格林喜鹊花园-73平-美式风格-卧室2.jpg 格林喜鹊花园-73平-美式风格-卧室.jpg

灰色系墙纸让居住空间更显慵懒宁静,黄色抱枕使整个卧室空间富有生机

格林喜鹊花园-73平-美式风格-卫生间.jpg

灰色墙砖地砖与爵士白手盆台面形成鲜明对比,增加空间层次感

格林喜鹊花园-73平-美式风格-厨房.jpg

简洁的厨房设计,现代烤漆板造型与素色台面衔接,搭配黑白色条纹墙砖,让厨房空间干净整洁,让人在用餐的同时能感受家的闲适,餐厅是家庭的心脏,是一切美好的开始,吧台的作用能让人在烹饪的同时能和家人进行更亲切的互动。

户型图.jpg

案例设计师

林凤设计师

设计师:林凤设计师

从业时间:10年

设计理念:室内设计是是人与环境的联系,是人类艺术与物质文明的结合

预约设计师

算算你家装修多少钱

报名即享丰厚赠品,品质装修

免费报价
咨询热线:400-656-9909
20190221103704574636.jpg

精品设计案例

20180612134930523248.jpg 服务号二维码.jpg