立即预约 立即预约
免费定制整装家居

免费定制整装家居

一站置家 全程无忧 一省到底
hide.png

当前位置: 首页 > 装修案例效果图 > 月星中央公园

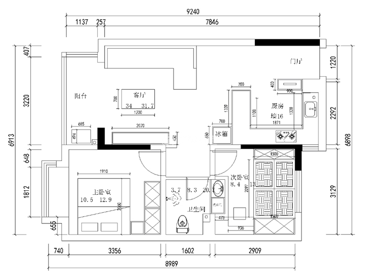
月星中央公园 86平 现代简约风格效果图

收藏
案例风格 现代简约 案例户型 二居 案例面积 86平米
楼盘名称 月星中央公园 设计师 王禹厶 案例类型 婚房

设计理念:设计师在设计客厅的时候充分考虑了客户入住几年后可能会出现的审美疲劳,并且采用现今主流的设计理念”轻装修,重装饰“,去繁从简。在色彩上,设计师采用了少量的比较跳的颜色,活跃空间气氛。

  • 案例详情

月星中央公园-86平-现代风格-客厅.jpg 月星中央公园-86平-现代风格-客厅3.jpg 月星中央公园-86平-现代风格-客厅2.jpg

客厅作为待客区域,一般要求简洁明快。整体而言,现代风的客厅宽阔明朗却不单调。客厅选择的是布艺的沙发,在美观的同时,保证了良好的舒适和透气性。沙发背景选用浅色挂画作为点缀,另一边的电视背景墙用简单的浅灰色自然地融入周围墙体,不会喧宾夺主,并使客厅整体感更强。

月星中央公园-86平-现代风格-餐厅.jpg

餐厅设计的亮点在于与厨房完美融合,美观实用高效利用空间。

月星中央公园-86平-现代风格-次卧.jpg 月星中央公园-86平-现代风格-次卧2.jpg 月星中央公园-86平-现代风格-次卧3.jpg 月星中央公园-86平-现代风格-主卧.jpg 月星中央公园-86平-现代风格-主卧2.jpg 月星中央公园-86平-现代风格-主卧3.jpg

这套案例借鉴了现代简约的黑白灰设计的元素,提升了居室的空间格调,一些深色的家具设计,让我们品味到一种实实在在的温馨感,以简约的表现形式来满足业主对于简约却不简单的居室环境的要求。

月星中央公园-86平-现代风格-卫生间2.jpg 月星中央公园-86平-现代风格-卫生间.jpg

因为卫生间是一个追求舒适的地方,只有整洁统一的色调才能给人以最舒适的感觉,卫浴用具统一白色,墙面地面选用统一的灰色砖,大气整洁,石材纹理给人放松自然之感。

月星中央公园-86平-现代风格-厨房.jpg 月星中央公园-86平-现代风格-平面图.jpg

案例设计师

王禹厶

设计师:王禹厶

从业时间:10年

设计理念:坚持原创,坚持一切美好

预约设计师

算算你家装修多少钱

报名即享丰厚赠品,品质装修

免费报价
咨询热线:400-656-9909
20190221103704574636.jpg

精品设计案例

20180612134930523248.jpg 服务号二维码.jpg