立即预约 立即预约
免费定制整装家居

免费定制整装家居

一站置家 全程无忧 一省到底
hide.png

当前位置: 首页 > 装修案例效果图 > 龙城公馆

龙城公馆 102平 现代简约风格效果图

收藏
案例风格 现代简约 案例户型 二居 案例面积 102平米
楼盘名称 龙城公馆 设计师 林凤装饰设计师 案例类型 婚房

设计理念:简约不简单,简洁不俗套,大道至简、以人为本。

客厅
第1张
餐厅
第1张
卧室
第1张
第2张
第3张
第4张
卫生间
第1张
厨房
第1张
第2张
门厅
第1张
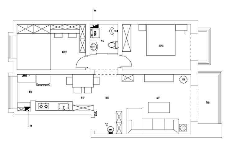
户型图
第1张
  • 案例详情

龙城公馆-102平-现代风格-客厅.jpg

客厅背景墙以灰色系机理硅藻泥饰面,简约而不失档次,易打理和吸附分解室内有害物是它的一大特点,色彩持久、永不退色,防火防潮,调节室内干湿度硅藻泥在不知不觉中已经成为了被大众认可和追捧的饰面宠儿。

龙城公馆-102平-现代风格-餐厅.jpg

厨房在相对拥挤的空间设计时,开敞式的厨房设计是一个很好的选择,敞开后的厨房没有了空间上的束缚与餐厅互惠互利,不但解决了自身对开门冰箱摆放的问题,而且也解决了餐厅酒柜的突兀没有整体感的问题,一石二鸟、一举两得!

龙城公馆-102平-现代风格-副卧.jpg 龙城公馆-102平-现代风格-副卧2.jpg 龙城公馆-102平-现代风格-主卧.jpg 龙城公馆-102平-现代风格-主卧2.jpg

主卧室里的家具一样可以一举两得,首先在床的选择上带床箱式的床就是一个很好的选择,过季的衣物再也不用担心没有地方存放了,虽然榻榻米可以解决问题,但日子越过越有,储物空间当然多多益善。其次是梳妆台的选择,不论空间大小,梳妆台如果想要就一定有位子,但重要的不是这一点,而是梳妆镜照人的问题,无论是在梳妆台旁阅读还是起夜,镜子的反影都会对我们的生活造成影响,其实很好解决,一个上翻式镜柜完美解决。

龙城公馆-102平-现代风格-卫生间.jpg

卫生间沿用了客厅黑白灰的设计手法,墙面B版瓷砖点缀式的铺贴方式为原本简洁、单调的卫浴空间注入一丝活力。

龙城公馆-102平-现代风格-厨房.jpg 龙城公馆-102平-现代风格-厨房.jpg 龙城公馆-102平-现代风格-玄关过廊.jpg 龙城公馆-102平-现代风格-平面图.jpg

案例设计师

林凤装饰设计师

设计师:林凤装饰设计师

从业时间:12年

设计理念:千人千面,设计以人为本才是王道。

预约设计师

算算你家装修多少钱

报名即享丰厚赠品,品质装修

免费报价
咨询热线:400-656-9909
20190221103704574636.jpg

精品设计案例

20180612134930523248.jpg 服务号二维码.jpg