立即预约
免费定制整装家居
一站置家 全程无忧 一省到底
设计理念:设计师在设计客厅的时候充分考虑了客户入住几年后可能会出现的审美疲劳,并且采用现今主流的设计理念”轻装修,重装饰“,去繁从简。利用家具以及配饰把客厅中的现代风格突显得淋漓尽致,在色彩上,设计师以灰色为主,并采用了少量的比较跳的颜色,使整个房间,干净,整洁又不失时尚!
案例详情
具有层次感的电视背景与周围墙体颜色完美融合,吊灯光线充足有个性。沙发背景画把客厅的色彩收进去,同时解决了背景墙空空的感觉,搭配软装,再加上合理利用采光优势,把丰沛的阳光引入,这些都被设计师拿来打造成了时尚、个性的现代居所。就像这对夫妻希望的那样,一点点把“悠闲、舒适、浪漫”的元素融入到新家中。
餐桌以黑胡桃色为主,餐椅为木质+皮质搭配,港范十足,挂画风格前卫时尚,吊灯也是一大亮点,给空间以丰富的层次感。
这套案例借鉴了现代简约的黑白灰设计,提升了居室的空间格调,一些深色的家具设计,让我们品味到一种实实在在的温馨感,以简约的表现形式来满足业主对于简约却不简单的居室环境的要求,由于现代人快节奏、高频率以及满负荷的生活节奏,导致了人们需要在一天的工作之余,想要得到一个简约型的空间来得到一个心灵的放松,本案例能够达到在家中摆脱世俗的繁琐、复杂并且追求简单、自然的的生活状态。
因为卫生间是一个追求舒适的地方,只有整洁统一的色调才能给人以最舒适的感觉,所以选用了统一的深色理石纹理瓷砖,卫浴用黑色柜体+白色石材台面搭配,高 大 上!
精品设计案例
设计说明:
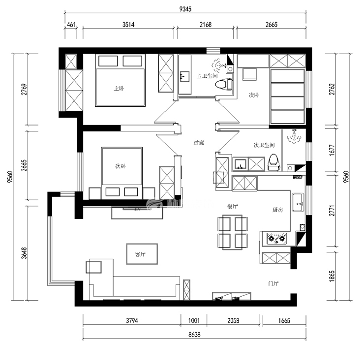
三室两厅一厨两卫,高层整体采用美式风格,色调以深色为主,体现美式的居家感和温馨感。
设计说明:
本案业主为年轻时尚小两口,所以我们考虑到未来想要给未来宝宝一个温馨舒适的一个房间,所以本案整体采用现代风格的手法,运用颜色,来打造整体空间的设计感及时尚感
设计说明:
本案以北欧风格为主题的设计,北欧风格能以现代、简洁、自然的特点俘获人心,所营造出来的生活氛围会让人倍感舒适与自在。
设计说明:
客户是一名成功人士,对于家的执念就是简单干净,客户衣服比较多,所以把每个空间都做了大衣柜,并且融入到设计里