立即预约 立即预约
免费定制整装家居

免费定制整装家居

一站置家 全程无忧 一省到底
hide.png

当前位置: 首页 > 装修案例效果图 > 龙湖西府原著

龙湖西府原著 80平 北欧风格效果图

收藏
案例风格 北欧 案例户型 二居 案例面积 80平米
楼盘名称 龙湖西府原著 设计师 林凤设计师 案例类型 婚房

设计理念:本案以北欧风格设计为主,让狭小的空间看上去简洁大方且功能齐全,让家中呈现一种自然的舒适、干净之美。

客厅
第1张
餐厅
第1张
卧室
第1张
第2张
第3张
第4张
卫生间
第1张
厨房
第1张
门厅
第1张
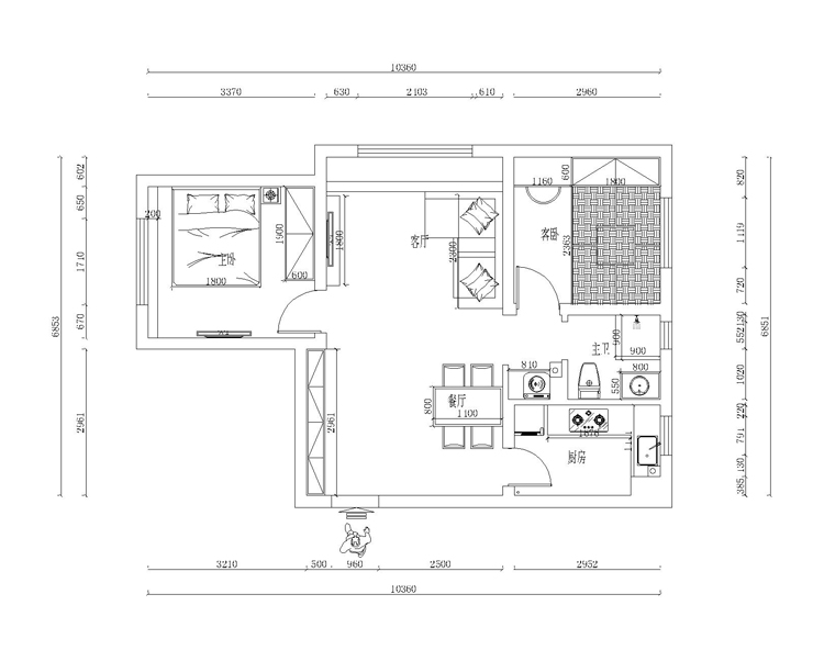
户型图
第1张
  • 案例详情

龙湖西府原著-80平-北欧风格-客厅.jpg

客厅用了流行的白色“砖墙”作为电视背景墙,搭配蓝色,黄色的沙发及抱枕营造出温馨的氛围。

龙湖西府原著-80平-北欧风格-餐厅.jpg

白色的餐椅与做旧的木质餐桌结合,再搭配上黄色的花束体现出无比温暖的感觉。

龙湖西府原著-80平-北欧风格-客卧.jpg 龙湖西府原著-80平-北欧风格-客卧01.jpg 龙湖西府原著-80平-北欧风格-主卧01.jpg 龙湖西府原著-80平-北欧风格-主卧.jpg

白色的衣柜结合浅色的抽象挂画给人清新干净的感觉。

龙湖西府原著-80平-北欧风格-卫生间.jpg

整个卫生间分为干区和湿区,更好,更有效的利用整个空间,湿区配以小花砖,使整个空间更为融合。

龙湖西府原著-80平-北欧风格-厨房.jpg

厨房主要以咖色为主,深木色柜体,浅色墙砖为辅,L型橱柜在生活中,既能满足日常需要又能体现出美观。

龙湖西府原著-80平-北欧风格-玄关.jpg 龙湖西府原著-80平-北欧风格-平面图.jpg

案例设计师

林凤设计师

设计师:林凤设计师

从业时间:6年

设计理念:化繁为简,以简驭繁。

预约设计师

算算你家装修多少钱

报名即享丰厚赠品,享半价装修

免费报价
咨询热线:400-656-9909
20190221103704574636.jpg

精品设计案例

20180612134930523248.jpg 服务号二维码.jpg