立即预约 立即预约
免费定制整装家居

免费定制整装家居

一站置家 全程无忧 一省到底
hide.png

当前位置: 首页 > 装修案例效果图 > 城建北尚

城建北尚 78平 北欧风格效果图

收藏
案例风格 北欧 案例户型 二居 案例面积 78平米
楼盘名称 城建北尚 设计师 林凤装饰设计师 案例类型 改善性住宅

设计理念:北欧风格现在在国内非常的流行,没有复杂的造型,节省费用,总体就是给人一种小清新的感觉,温馨舒适,色彩鲜艳,营造一种轻松舒适的居住环境。

客厅
第1张
第2张
第3张
餐厅
第1张
第2张
卧室
第1张
第2张
卫生间
第1张
厨房
第1张
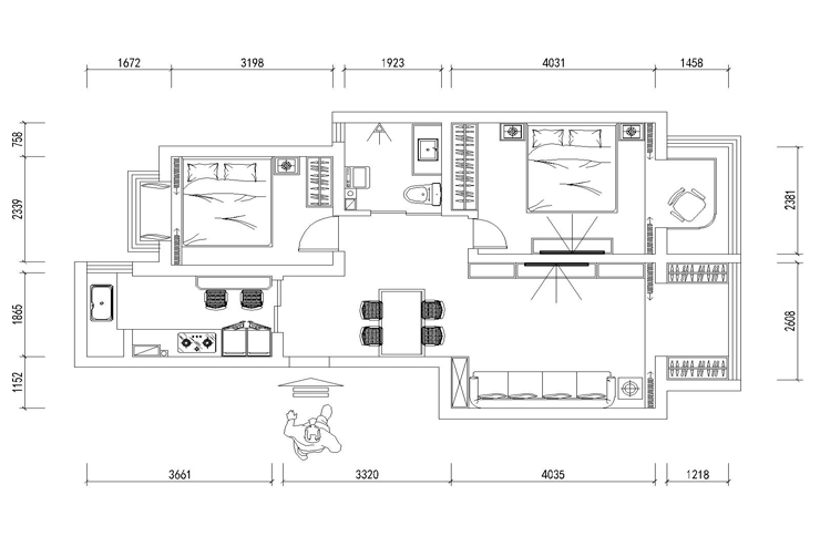
户型图
第1张
  • 案例详情

城建北尚-78平-北欧风格-客厅1.jpg 城建北尚-78平-北欧风格-客厅3.jpg 城建北尚-78平-北欧风格-客厅2.jpg

客厅采用简单的北欧家具,带有跳跃感的浅黄色茶几,背景墙没有复杂的造型修饰,采用墙挂式家具,配合中间的硅藻泥,增加储藏空间的同时,背景墙显得很整洁简单。

城建北尚-78平-北欧风格-餐厅.jpg 城建北尚-78平-北欧风格-餐厅2.jpg

餐厅区域继续客厅电视背景墙的硅藻泥部分,另一种颜色的餐桌,使业主走到该区域后,视觉上能有另一种体验。

城建北尚-78平-北欧风格-主卧1.jpg 城建北尚-78平-北欧风格-主卧2.jpg

卧室阳台空间改造成了带有书桌的学习区域,该区域阳光充足,视野开阔,很适合学习。卧室部分与阳台学习部分用窗帘隔开,形成独立的区域,这样就可以在卧室墙面刷上比较温馨的颜色,使学习区域和休息区域互不干涉。

城建北尚-78平-北欧风格-卫生间.jpg

卫生间因为业主想要大一点的淋浴区,所以将洗面台和洗衣机做成连体形式,这样洗面台的大小不受影响,各个功能都可以满足。

城建北尚-78平-北欧风格-厨房.jpg

厨房区域除了标准的橱柜,水槽,烟机灶具以外,做了一个简易的吧台,这样业主在吃一些简餐的时候,就不需要到餐桌区域,在厨房就可以享用。

城建北尚-78平-北欧风格-平面图.jpg

案例设计师

林凤装饰设计师

设计师:林凤装饰设计师

从业时间:6年

设计理念:设计讲求可行性,即理性与洒脱的结合。

预约设计师

算算你家装修多少钱

报名即享丰厚赠品,享半价装修

免费报价
咨询热线:400-656-9909
20190221103704574636.jpg

精品设计案例

20180612134930523248.jpg 服务号二维码.jpg