立即预约 立即预约
免费定制整装家居

免费定制整装家居

一站置家 全程无忧 一省到底
hide.png

当前位置: 首页 > 装修案例效果图 > 名流印象

名流印象 71平 现代简约风格效果图

收藏
案例风格 现代简约 案例户型 二居 案例面积 71平米
楼盘名称 名流印象 设计师 林凤装饰设计师 案例类型 改善性住宅

设计理念:现代风格在处理空间划分方面强调避繁就简,让空间感融入生活,营造自然,品味,格调。

客厅
第1张
第2张
餐厅
第1张
卧室
第1张
第2张
卫生间
第1张
厨房
第1张
门厅
第1张
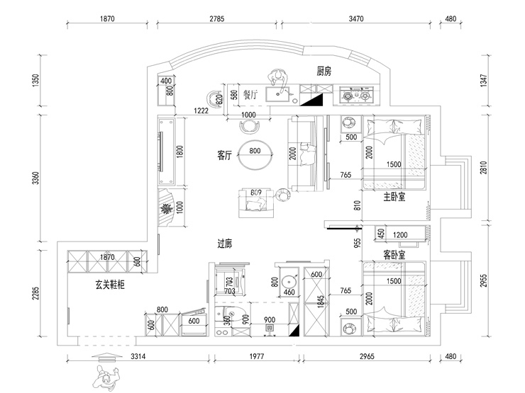
户型图
第1张
  • 案例详情

名流印象-71平-现代风格-客厅1.jpg 名流印象-71平-现代风格-客厅2.jpg

客厅的设计设计整体来说是最中心点,它在设计的同时又要考虑到动线方面。电视墙采用的是灰色硅藻泥,这一点足以能够体现出低成本高品位的要求。棚顶用平棚筒灯来做动线示意设计,深灰色哑光地砖体现出空间的整洁利落的同时也彰显出单身男士的潇洒。

名流印象-71平-现代风格-餐厅.jpg

考虑到餐厅吧台在沙发旁边,餐厅吧台做的偏高,在体积与功能使用上与客厅增加了视觉上的区别,增加了储物空间又与沙发区形成空间对比。

名流印象-71平-现代风格-主卧室2.jpg 名流印象-71平-现代风格-主卧室1.jpg

黑色推拉门搭配白色纱帘,给人纯洁干净的感觉,纯白色百叶窗又不会给人压抑的感觉,与地面灰色哑光瓷砖产生对比。

名流印象-71平-现代风格-卫生间.jpg

整体采用了黑白搭配的墙面瓷砖,与洁具的颜色产生统一,柔化了整个卫生间的空间感,给人洁净统一的感觉。

名流印象-71平-现代风格-厨房.jpg

整体瓷砖选用了白色理石纹理横向铺贴的方式,橱柜选用了深色木材,与纯白色台面对比明显,棚顶的石膏板吊棚与客厅的棚顶统一高度,大幅度增加了开放厨房的整体感。

名流印象-71平-现代风格-玄关.jpg 名流印象-71平-现代风格-户型图.jpg

案例设计师

林凤装饰设计师

设计师:林凤装饰设计师

从业时间:8年

设计理念:在确保满足使用功能的前提下,达到审美效果的最大化。

预约设计师

算算你家装修多少钱

报名即享丰厚赠品,品质装修

免费报价
咨询热线:400-656-9909
20190221103704574636.jpg

精品设计案例

20180612134930523248.jpg 服务号二维码.jpg