立即预约 立即预约
免费定制整装家居

免费定制整装家居

一站置家 全程无忧 一省到底
hide.png

当前位置: 首页 > 装修案例效果图 > 首创光和城

首创光和城 82平 现代简约风格效果图

收藏
案例风格 现代简约 案例户型 二居 案例面积 82平米
楼盘名称 首创光和城 设计师 林凤装饰设计师 案例类型 婚房

设计理念:合理划分空间,让设计融入生活,营造自然,品味,格调。

客厅
第1张
第2张
餐厅
第1张
第2张
卧室
第1张
卫生间
第1张
厨房
第1张
门厅
第1张
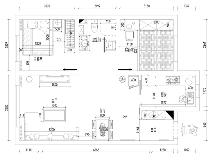
户型图
第1张
  • 案例详情

首创光和城-82平-现代风格-客厅1.jpg 首创光和城-82平-现代风格-客厅2.jpg

客厅的设计在电视机墙这一块,采用的是彩色乳胶漆,这一点足以能够体现出低成本高质感的要求。直线边棚做造型体现出空间的整洁利落又增加了照明的多样性。

首创光和城-82平-现代风格-餐厅1.jpg 首创光和城-82平-现代风格-餐厅2.jpg

考虑到餐厅与沙发在同一侧,餐厅背景墙做的墙面装饰隔板,增加了储物空间又与沙发背景的挂画在造型与空间上形成空间对比。

首创光和城-82平-现代风格-主卧室.jpg

卧室墙面选用了咖色暗纹壁纸与棚面的白色乳胶漆,白色衣柜,产生色彩上的碰撞,增加了视觉的空间感,

首创光和城-82平-现代风格-卫生间.jpg

整体采用了暖黄色墙面,搭配白色洁具与深色浴帘,使整个卫生间给人温暖的感觉。

首创光和城-82平-现代风格-厨房.jpg

整体瓷砖选用了白色理石纹理横向铺贴的方式,橱柜选用了深色亮面材质,与纯白色台面对比明显,整个空间给人一种干净整洁的感觉。

首创光和城-82平-现代风格-玄关.jpg 首创光和城-82平-现代风格-户型图.jpg

案例设计师

林凤装饰设计师

设计师:林凤装饰设计师

从业时间:10年

设计理念:合理划分空间,让设计融入生活,营造自然、品味、格调。

预约设计师

算算你家装修多少钱

报名即享丰厚赠品,享半价装修

免费报价
咨询热线:400-656-9909
20190221103704574636.jpg

精品设计案例

20180612134930523248.jpg 服务号二维码.jpg