立即预约 立即预约
免费定制整装家居

免费定制整装家居

一站置家 全程无忧 一省到底
hide.png

当前位置: 首页 > 装修案例效果图 > 美弗霞湾

美弗霞湾 89平 现代简约风格效果图

收藏
案例风格 现代简约 案例户型 二居 案例面积 89平米
楼盘名称 美弗霞湾 设计师 林凤装饰设计师 案例类型 婚房

设计理念:本案是简约风格,纯净的现代风格,更接近自然,留白只为多一些气场。

客厅
第1张
第2张
餐厅
第1张
卧室
第1张
第2张
卫生间
第1张
第2张
厨房
第1张
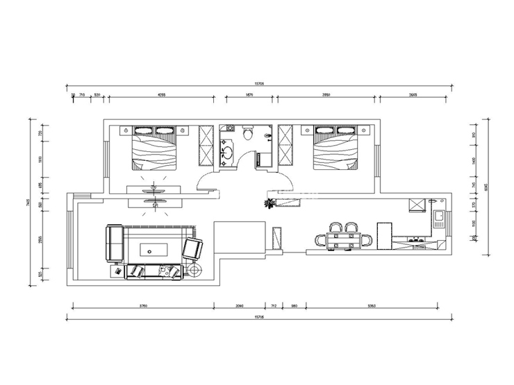
户型图
第1张
  • 案例详情

美弗霞湾-89平米-现代风格-客厅.jpg 美弗霞湾-89平米-现代风格-客厅2.jpg

客厅用色白色、深蓝为主,更多的是以白为主,更多的留白让客厅空间显得更宽敞通透,屋子明亮,加上星星点点的明亮色彩,让留白显得更不平凡,重色的配色搭配出自然的气息,让纯白色的现代多一些仪式感。

美弗霞湾-89平米-现代风格-餐厅.jpg

餐厅主人强调以实用性和易清理为主,简单的现代风格的餐桌,简单易清理,不繁琐的酒柜,简单而不失华贵,对一个单身的女青年来说基本功能性加上好打理才更符合个人的需要。

美弗霞湾-89平米-现代风格-次卧室.jpg 美弗霞湾-89平米-现代风格-卧室.jpg

卧室是每个家最重要的地方,我们休息,养精蓄锐,都很重要养好了精神才能有更好的状态,卧室去除了眼花缭乱的配饰让疲惫一天的人回家能得到更好的休息。

美弗霞湾-89平米-现代风格-卫生间2.jpg 美弗霞湾-89平米-现代风格-卫生间.jpg

卫生间以白色为主,卫生间实际尺寸要小一些,通过一会实地的测量,把卫生间的门口往外面移了一些有效的增加了卫生间的尺寸原本卫生间放不了洗衣机,现在能很好的放在里面,卫生间色彩的搭配让人百看不厌。

美弗霞湾-89平米-现代风格-厨房.jpg

厨房简约大气色彩搭配大胆时尚,整个空间整洁使用率高,以现代时尚元素搭配,使整个厨房不闷,宽敞明亮。

美弗霞湾-89平米-现代风格-平面图.jpg

案例设计师

林凤装饰设计师

设计师:林凤装饰设计师

从业时间:3年

设计理念:一切的设计源于生活,打造高品质的家

预约设计师

算算你家装修多少钱

报名即享丰厚赠品,品质装修

免费报价
咨询热线:400-656-9909
20190221103704574636.jpg

精品设计案例

20180612134930523248.jpg 服务号二维码.jpg