立即预约 立即预约
免费定制整装家居

免费定制整装家居

一站置家 全程无忧 一省到底
hide.png

当前位置: 首页 > 装修案例效果图 > 宏泰香铺湾

宏泰香铺湾 110平 现代简约风格效果图

收藏
案例风格 现代简约 案例户型 三居 案例面积 110平米
楼盘名称 宏泰香铺湾 设计师 林凤设计师 案例类型 婚房

设计理念:本案是后现代风格,现整体色系以深色系为主,整体以深灰,深木色,金属质感等材质搭配,让整体感觉沉稳轻奢。

客厅
第1张
第2张
第3张
餐厅
第1张
第2张
卧室
第1张
第2张
卫生间
第1张
厨房
第1张
门厅
第1张
第2张
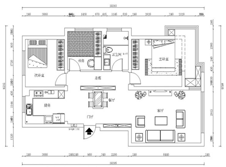
户型图
第1张
  • 案例详情

宏泰香蒲湾-110平米-后现代风格-电视背景.jpg 宏泰香蒲湾-110平米-后现代风格-客厅1.jpg 宏泰香蒲湾-110平米-后现代风格-客厅.jpg

客厅墙面采用灰色壁纸,搭配木色地板,家居饰品搭配北欧轻奢的感觉。背景墙采用护墙板,简单大气,木质色系和整体柜体相呼应,整体空间协调融洽。

宏泰香蒲湾-110平米-后现代风格-餐厅1.jpg 宏泰香蒲湾-110平米-后现代风格-餐厅.jpg

餐厅空间由于没有背景,所以采用酒柜设计,既增加了背景也增添了餐厅的储物空间,整体的柜体设计和门厅相呼应。

宏泰香蒲湾-110平米-后现代风格-卧室.jpg 宏泰香蒲湾-110平米-后现代风格-卧室1.jpg

卧室男房主喜欢富有智慧的蓝色系,墙面壁纸依然采用灰色系,软装配饰搭配蓝色床品,床头采用金属质感的后现代装饰,让整个卧室显得时尚奢华。

宏泰香蒲湾-110平米-后现代风格-卫生间.jpg

非常温馨的墙砖和艺术地砖想搭配,洗浴区采用浴帘隔开,不喜欢封闭的玻璃材质,而采用了浴帘的设计,方便打理。

宏泰香蒲湾-110平米-后现代风格-厨房.jpg

厨房墙砖采用哑光灰色墙砖,搭配深木色地柜和白色上柜,质地奢华,光线明亮大气,整体橱柜让空间的电器区和储物空间更合理的搭配在一起。

宏泰香蒲湾-110平米-后现代风格-门厅1.jpg 宏泰香蒲湾-110平米-后现代风格-门厅.jpg 宏泰香蒲湾-110平米-后现代风格-平面图.jpg

案例设计师

林凤设计师

设计师:林凤设计师

从业时间:5年

设计理念:经验和习惯的沉淀,时尚与美观的结合

预约设计师

算算你家装修多少钱

报名即享丰厚赠品,享半价装修

免费报价
咨询热线:400-656-9909
20190221103704574636.jpg

精品设计案例

20180612134930523248.jpg 服务号二维码.jpg