立即预约 立即预约
免费定制整装家居

免费定制整装家居

一站置家 全程无忧 一省到底
hide.png

当前位置: 首页 > 装修案例效果图 > 首创国际

首创国际 108平 现代简约风格效果图

收藏
案例风格 现代简约 案例户型 三居 案例面积 108平米
楼盘名称 首创国际 设计师 林凤装饰设计师 案例类型 婚房

设计理念:本案整体墙面以暖黄色为主,房主是年轻夫妻.整体采用现代简约风格。房主喜欢简约大气的风格 ,家具采用了亮面的材质搭配,..能使整体空间更敞亮,整体颜色上采用了中色系显的简洁、大气、有档次。

客厅
第1张
第2张
第3张
卧室
第1张
卫生间
第1张
第2张
厨房
第1张
儿童房
第1张
第2张
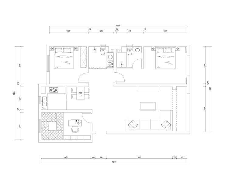
户型图
第1张
  • 案例详情

首创国际-108平-现代风格-客厅2.jpg 首创国际-108平-现代风格-客厅1.jpg 首创国际-108平-现代风格-客厅3.jpg

本案客厅用的是地砖,沙发采用简约布艺沙发。布艺沙发体现整体更有活力,放大空间的视觉效果。显的简约而不简单。电视背景墙采用玻璃和石膏板造型的结合,能更有效的体现材质对比,使空间对比强烈,宽敞明亮

首创国际-108平-现代风格-主卧室.jpg

本案主卧室的床头采用软包与镜面的相结合,使空间更有层次感.棚面采用简单的叠级石膏线来装饰。家具用的造型简约.这样卧室使整体空间简约而不简单。

首创国际-108平-现代风格-主卫生间.jpg 首创国际-108平-现代风格-客卫生间.jpg 首创国际-108平-现代风格-厨房.jpg

本案厨房以暖色砖为主,使厨房更加温馨、干净、整洁,打理起来更容易一些。搭配漆面的橱柜,更有艺术感不单一.,使空间有更多的变化..

首创国际-108平-现代风格-女儿房2.jpg 首创国际-108平-现代风格-女儿房1.jpg

本案女儿房以粉色为主,使整个卧室更加温馨、整个空间的分布如同让女儿在梦幻般。..

首创国际-108平-现代风格-平面布局图.jpg

案例设计师

林凤装饰设计师

设计师:林凤装饰设计师

从业时间:6年

设计理念:家居设计是一种艺术表现方式,是设计师与客户共同参与的一项创作活动。

预约设计师

算算你家装修多少钱

报名即享丰厚赠品,享半价装修

免费报价
咨询热线:400-656-9909
20190221103704574636.jpg

精品设计案例

20180612134930523248.jpg 服务号二维码.jpg