立即预约 立即预约
免费定制整装家居

免费定制整装家居

一站置家 全程无忧 一省到底
hide.png

当前位置: 首页 > 装修案例效果图 > 金地艺境

金地艺境 121平 现代简约风格效果图

收藏
案例风格 现代简约 案例户型 三居 案例面积 121平米
楼盘名称 金地艺境 设计师 林凤装饰设计师 案例类型 婚房

设计理念:以人为本,缔造经典。

客厅
第1张
第2张
餐厅
第1张
卧室
第1张
卫生间
第1张
厨房
第1张
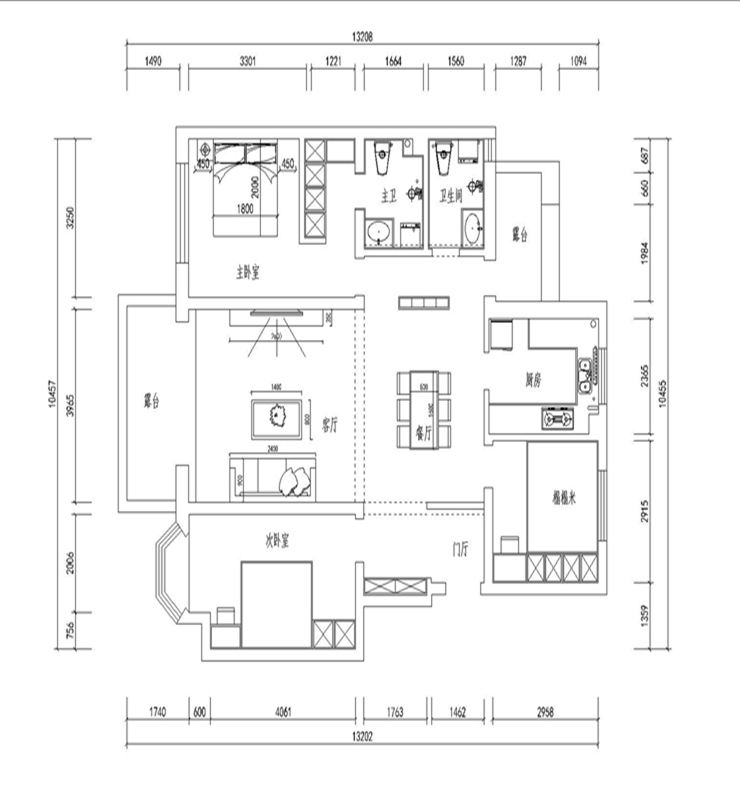
户型图
第1张
  • 案例详情

金地艺境-121平-现代风格-客厅1.jpg 金地艺境-121平-现代风格-客厅.jpg

客厅棚主要运用石膏线与圈棚来进行区域的划分,电视背景墙使用灰色暗纹理壁布,使背景墙有质感,简单而低调的美。加大了空间的视觉效果,整体的客厅大气简约。通过隔断家具划分卫生间与餐厅的位置,即具有通透性又具有遮挡功能,满足客户需求。

金地艺境-121平-现代风格-餐厅.jpg

餐厅搭配现代感十足的餐桌,让餐厅感觉更时尚。餐桌上方配小吊灯让餐厅更有情调。餐厅搭配与客厅和谐统一。餐桌旁的墙面做隔板装饰,满足女主人置放玩具的需求,同时给家增添一份灵动。

金地艺境-121平-现代风格-主卧.jpg

卧室使用黑胡桃木色家具,背景墙用灰色壁布,预留婚纱照位置,满足客户新婚需求。灰蓝色窗帘给卧室增添一份宁静典雅。使其空间舒适、温馨,体现出简洁而又人性化的设计。

金地艺境-121平-现代风格-卫生间.jpg

卫生间地面使用灰色瓷砖,墙面使用浅灰和深灰增加空间的立体感,洁具简单大方。满足使用功能。

金地艺境-121平-现代风格-厨房.jpg

厨房墙选用浅暖一点瓷砖、玫瑰金橱柜彰显奢华格调,布局紧密,充分利用每一寸使用空间。

金地艺境-121平-现代风格-平面图.jpg

案例设计师

林凤装饰设计师

设计师:林凤装饰设计师

从业时间:9年

设计理念:用最简单的线条表达出最美的效果。

预约设计师

算算你家装修多少钱

报名即享丰厚赠品,品质装修

免费报价
咨询热线:400-656-9909
20190221103704574636.jpg

精品设计案例

20180612134930523248.jpg 服务号二维码.jpg