立即预约 立即预约
免费定制整装家居

免费定制整装家居

一站置家 全程无忧 一省到底
hide.png

当前位置: 首页 > 装修案例效果图 > 益格筑景

益格筑景 90平 现代简约风格效果图

收藏
案例风格 现代简约 案例户型 二居 案例面积 90平米
楼盘名称 益格筑景 设计师 林凤装饰设计师 案例类型 改善性住宅

设计理念:现代简约风格主要体现契合现代人的时代感,都市快节奏,满足功能需求的同时,尽量让空间变得更加时尚美观。该案例以暖色为基调,为业主创造出温馨、舒适的居住氛围。

客厅
第1张
第2张
第3张
餐厅
第1张
卧室
第1张
卫生间
第1张
厨房
第1张
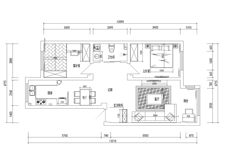
户型图
第1张
  • 案例详情

益格筑景-90平-现代风格-客厅2.jpg 益格筑景-90平-现代风格-客厅3.jpg 益格筑景-90平-现代风格-客厅1.jpg

宽敞的空间,电视背景墙采用石膏跌级造型为主,再配上黑色烤漆玻璃和壁纸做背景,简约时尚的同时少不了大气,后期一套超现代化的家具和灯具瞬间让整个空间感觉更加时尚诙谐。

益格筑景-90平-现代风格-餐厅.jpg

由于原建筑问题,正好把餐厅区给与定位,凹嵌的区域餐桌正好靠在次区域,棚面正好把餐桌区留出来,提升空间的同时让人感觉没那么压抑,墙面的壁纸和餐桌颜色搭配的恰到好处。

益格筑景-90平-现代风格-卧室.jpg

高冷范的空间卧室,软包皮革床,现代化的休闲垂钓灯, 波浪纹的精致壁纸,瞬间把空间调控起来。

益格筑景-90平-现代风格-卫生间.jpg

大理石纹理的墙面砖配上艺术拼图地砖,大气的同时也充满艺术,高低错层的洗手盆和洗衣机的设计是整个空间的最大亮点,美观的同时实用性也大大增加了。

益格筑景-90平-现代风格-厨房.jpg

对于建筑90平米的空间,厨房的空间显得格外宽敞,灰色一体的上下烤漆橱柜,显得格外漂亮,倒U型的设计,也让主人使用起来更加得心应手。

益格筑景-90平-现代风格-平面图.jpg

案例设计师

林凤装饰设计师

设计师:林凤装饰设计师

从业时间:10年

设计理念:用灵魂感知梦一般的空间

预约设计师

算算你家装修多少钱

报名即享丰厚赠品,享半价装修

免费报价
咨询热线:400-656-9909
20190221103704574636.jpg

精品设计案例

20180612134930523248.jpg 服务号二维码.jpg