立即预约 立即预约
免费定制整装家居

免费定制整装家居

一站置家 全程无忧 一省到底
hide.png

当前位置: 首页 > 装修案例效果图 > 华润24城

华润24城 120平 北欧风格效果图

收藏
案例风格 北欧 案例户型 三居 案例面积 120平米
楼盘名称 华润24城 设计师 林凤设计师 案例类型 婚房

设计理念:全心全意做设计,踏踏实实做装修。特色是将设计的元素、色彩、照明、原材料简化到最少的程度,但对色彩、材料的质感要求很高。因此,简约的空间设计通常非常含蓄,往往能达到以少胜多、以简胜繁的效果。

客厅
第1张
第2张
第3张
第4张
第5张
餐厅
第1张
卧室
第1张
卫生间
第1张
门厅
第1张
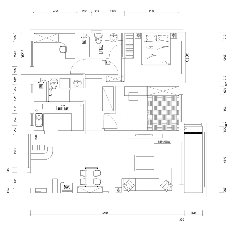
户型图
第1张
  • 案例详情

华润24城-120平-现代北欧风格-电视背景.jpg 华润24城-120平-现代北欧风格-过廊.jpg 华润24城-120平-现代北欧风格-客厅2.jpg 华润24城-120平-现代北欧风格-客厅3.jpg 华润24城-120平-现代北欧风格-04客厅1.jpg

背景墙处采用的是地板材质,达到舒适的视觉感受,用以壁纸,和乳胶漆调色为基础,不失空间的质感。整个空间的吊棚,线条的延伸感设计。用以突出门厅餐厅客厅的贯穿。有区域分别,又有整体通透感。

华润24城-120平-现代北欧风格-餐厅.jpg

餐厅的部分,有实用性的酒柜作用于餐厅侧边。功能性和美观性二者缺一不可。

华润24城-120平-现代北欧风格-卧室.jpg

卧室也运用了颜色的整体呼应,让整体更加突出。

华润24城-120平-现代北欧风格-卫生间.jpg

卫生间黑白色的搭配。让整体显得干净大气。

华润24城-120平-现代北欧风格-门厅.jpg 华润24城-120平-现代北欧风格-平面图.jpg

案例设计师

林凤设计师

设计师:林凤设计师

从业时间:8年

设计理念:先客户之忧而忧,后客户之乐而乐

预约设计师

算算你家装修多少钱

报名即享丰厚赠品,享半价装修

免费报价
咨询热线:400-656-9909
20190221103704574636.jpg

精品设计案例

20180612134930523248.jpg 服务号二维码.jpg