立即预约 立即预约
免费定制整装家居

免费定制整装家居

一站置家 全程无忧 一省到底
hide.png

当前位置: 首页 > 装修案例效果图 > 雍添金园

雍添金园 150平 现代简约风格效果图

收藏
案例风格 现代简约 案例户型 三居 案例面积 150平米
楼盘名称 雍添金园 设计师 林凤装饰设计师 案例类型 改善性住宅

设计理念:现代简约风格的主要设计理念是简洁、舒适,线条简单,室内空间大方。

客厅
第1张
第2张
餐厅
第1张
第2张
卧室
第1张
卫生间
第1张
厨房
第1张
第2张
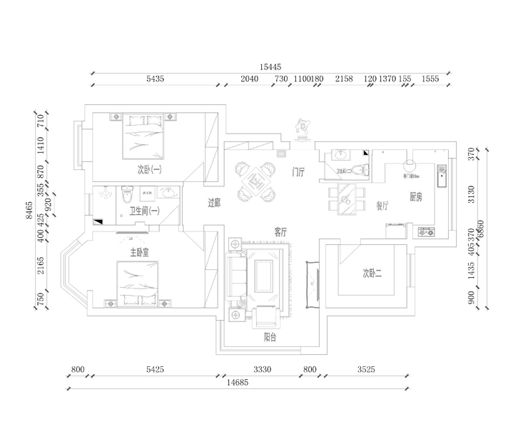
户型图
第1张
  • 案例详情

雍添金园-150平-现代风格-客厅.jpg 雍添金园-150平-现代风格-客厅2.jpg

现代设计追求的是空间的适用性和灵敏性。客厅两道承重梁略显压抑,通过拱形吊顶处理,搭配简约线条背景墙,利弊结合,彰显呈现文化味道。

雍添金园-150平-现代风格-餐厅.jpg 雍添金园-150平-现代风格-餐厅2.jpg

在餐桌的墙面上摆放一些装饰画,以达到增加餐厅的情调。而餐桌上的绿色植物,则起到了画龙点睛的作用,使环境充满生机与活力。

雍添金园-150平-现代风格-次卧室.jpg

简洁舒适的现代风卧室最适宜安抚紧张的情绪。当拖着一身的疲惫回到家中,最需要的或许就是这样一个舒适的环境,来缓解自己囤积一天的劳顿。

雍添金园-150平-现代风格-主卫.jpg

简洁大规格防滑的瓷砖为主,整体应该给人一种明亮简洁的感觉,易于清洁、美观简洁.

雍添金园-150平-现代风格-厨房2.jpg 雍添金园-150平-现代风格-厨房.jpg

开放式厨房,满足日常需求条件,实木的整体橱柜设计,流利的线条,大理石的台面整体显得十分的简单素雅。

雍添金园-150平-现代风格-平面图.jpg

案例设计师

林凤装饰设计师

设计师:林凤装饰设计师

从业时间:16年

设计理念:设计源于生活,细节成就品质。

预约设计师

算算你家装修多少钱

报名即享丰厚赠品,享半价装修

免费报价
咨询热线:400-656-9909
20190221103704574636.jpg

精品设计案例

20180612134930523248.jpg 服务号二维码.jpg