立即预约 立即预约
免费定制整装家居

免费定制整装家居

一站置家 全程无忧 一省到底
hide.png

当前位置: 首页 > 装修案例效果图 > 首创光和城

首创光和城 135平 北欧风格效果图

收藏
案例风格 北欧 案例户型 四居 案例面积 135平米
楼盘名称 首创光和城 设计师 林凤设计师 案例类型 改善性住宅

设计理念:本案装修风格定位为北欧modern style,源于北欧瑞典地区,是改进型北欧风格,融合了很多现代元素,保留了北欧风的天然材质和线条简洁性。墙面局部做了灰色来增加立面的变化,地面以灰色地砖为主,搭配浅实木框架的家具。软装饰搭配纯棉,亚麻等天然材质,饰品摆件以陶器及多色玻璃。

客厅
第1张
第2张
第3张
餐厅
第1张
第2张
第3张
卧室
第1张
卫生间
第1张
厨房
第1张
书房
第1张
第2张
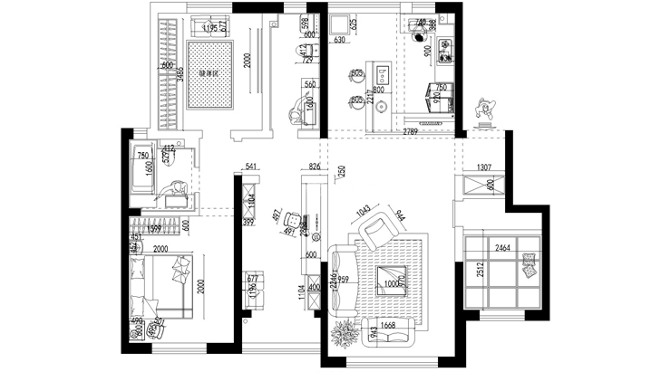
户型图
第1张
  • 案例详情

首创光和城-135平-北欧风格-客厅01.jpg 首创光和城-135平-北欧风格-客厅05.jpg 首创光和城-135平-北欧风格-客厅03.jpg

客厅与书房打通了,以半墙为区域划分,这样增加了客厅和书房的通透感,让两个空间看起来都大了很多;也可以通过半墙上的折门拉开后完全隔离两个空间,两个固定的空间变成了两个活的空间。电视背景墙采用电动幕布设计,平时幕布升起来,榻榻米房间的谷仓门就变成了背景墙的一部分。

首创光和城-135平-北欧风格-餐厅和厨房02.jpg 首创光和城-135平-北欧风格-餐厅和厨房01.jpg 首创光和城-135平-北欧风格-餐厅和厨房03.jpg

餐厅没有按常规餐桌设计,而是为了对厨房电器做补充空间采用了吧台设计,80公分宽的台面当成大餐桌台面也富富有余。

首创光和城-135平-北欧风格-主卧.jpg

主卧室和连通的北卧室尺寸都不大,为了增加主卧北欧风格的开阔感,我把南北卧室做成了套间,把北卧做成衣帽间和健身室,这样南卧不用放衣柜,动线位置宽敞很多。主卧照明以点光源和装饰光源为主,无主灯设计,不占用上方空间。

首创光和城-135平-北欧风格-卫生间.jpg

主卫空间比较大,但是因为管道布局不合理造成空间利用率低。经过合理拆改后,把坐便通过壁挂式移位到了下水主杠附近,一是利于排水,二是利于浴缸和手盆的合理布局。

首创光和城-135平-北欧风格-餐厅和厨房01.jpg

厨房经过与餐厅打通,采光与通风都很好,考虑橱柜用白色烤漆的,所以墙砖用了对比强烈质感粗糙的冷灰色墙砖。

首创光和城-135平-北欧风格-书房02.jpg 首创光和城-135平-北欧风格-书房01.jpg 首创光和城-135平-北欧风格-平面图.jpg

案例设计师

林凤设计师

设计师:林凤设计师

从业时间:20年

设计理念:您的梦想由我来实现。

预约设计师

算算你家装修多少钱

报名即享丰厚赠品,品质装修

免费报价
咨询热线:400-656-9909
20190221103704574636.jpg

精品设计案例

20180612134930523248.jpg 服务号二维码.jpg