立即预约
免费定制整装家居
一站置家 全程无忧 一省到底
设计理念:实用至上
案例详情
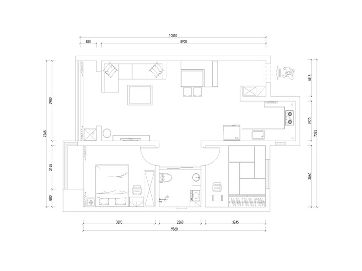
客厅是家中主要的休闲场所,可以说是重要场所了.整个客厅背景墙以灰色调为主,显示了业主不张 扬的个性.但背景墙的砖艺设计却让客厅变得明亮起来。灰色的沙发和整个墙壁颜色搭配起来给人一种舒服的感觉。 实木的储物柜实用又不碍位置。再用一些亮色调节,低调中又不失优雅。
北欧主要色调以木色搭配其他颜色。所以餐桌选择了木色融合了白色的卡座设计。卡座还起到了玄关的作用。不仅很美观,还增加了储物空间
卧室是整套房子中最私人也是最体现出温馨休闲感的空间,一般在设计时要体现出静谧舒适的感觉,并且与其他空间明显的区别。在设计时一般会根据主人的个性要求去设计。由于卧室的核心设计是床与衣柜,所以除了摆设这简约的双人床和卧室必备的衣柜、壁灯以外,没有再过多的放置其它物品。整个卧室呈现出一种淡静的清新感,简约而素雅。
卫生间也是室内设计中的一个重要部分。这套室内设计中的卫生间设计趋向的原则干净、简洁。整体的布置采用四周墙面贴上瓷砖,让整个卫生间呈现出简洁、干净的感觉。这样的感觉氛围使得在家休息沐浴时是更快乐的舒心享受过程。
白色与木色的结合体现出厨房的清新,也体现出北欧风格的主要的特点,功能空间也运用的淋漓致。
精品设计案例
设计说明:
三室两厅一厨两卫,高层整体采用美式风格,色调以深色为主,体现美式的居家感和温馨感。
设计说明:
本案业主为年轻时尚小两口,所以我们考虑到未来想要给未来宝宝一个温馨舒适的一个房间,所以本案整体采用现代风格的手法,运用颜色,来打造整体空间的设计感及时尚感
设计说明:
本案以北欧风格为主题的设计,北欧风格能以现代、简洁、自然的特点俘获人心,所营造出来的生活氛围会让人倍感舒适与自在。
设计说明:
客户是一名成功人士,对于家的执念就是简单干净,客户衣服比较多,所以把每个空间都做了大衣柜,并且融入到设计里