立即预约 立即预约
免费定制整装家居

免费定制整装家居

一站置家 全程无忧 一省到底
hide.png

当前位置: 首页 > 装修案例效果图 > 金地铁西檀府

金地铁西檀府 105平 现代简约风格效果图

收藏
案例风格 现代简约 案例户型 二居 案例面积 105平米
楼盘名称 金地铁西檀府 设计师 林凤装饰设计师 案例类型 婚房

设计理念:用艺术化是手法,以人为本的理念,设计营造出人性化,合理的室内外空间的舒适环境。

客厅
第1张
第2张
第3张
餐厅
第1张
第2张
第3张
卧室
第1张
卫生间
第1张
厨房
第1张
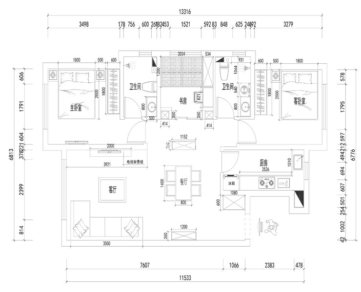
户型图
第1张
  • 案例详情

铁西檀府-105平-现代简约-客厅(2).jpg 铁西檀府-105平-现代简约-客厅.jpg 铁西檀府-105平-现代简约-客厅(3).jpg

客厅作为待客区域,业主要求设计上要凸显出现代的特点,客厅地面选用地面采用地板纹理样式的地砖,电视背景墙造型简洁现代用色简单,有利感之感,没有浮夸表面装饰处理,白色电视柜进行点缀。空间具有层次感,沙发背景墙采用挂画的形式,与电视背景墙相呼应,主次分明,客厅区域看起来非常大气有内涵

铁西檀府-105平-现代简约-餐厅(2).jpg 铁西檀府-105平-现代简约-餐厅(3).jpg 铁西檀府-105平-现代简约-餐厅.jpg

餐厅是人们就餐的场所,浅色木质餐桌搭配四种不同颜色的餐椅,造型及色彩相协调,并与整个餐厅格调一致。隔板式餐边柜显得餐厅很大气,以及不同颜色的吊灯,颜色搭配一致,实现了现代风格设计的特点,为业主营造一个舒适怡人的就餐环境。

铁西檀府-105平-现代简约-卧室.jpg

卧室是整套房子中最私人也是最体现出温馨休闲感的空间,一般在设计时要体现出静谧舒适的感觉,并且与其他空间明显的区别。主卧室面积较大,一张双人床两个床头柜以及一个衣柜,满足业主的需求,窗帘和床以及床头背景墙颜色呼应,使得卧室变的更加宽敞温馨。

铁西檀府-105平-现代简约-卫生间.jpg

卫生间的环境影响着家庭卫生,所以卫生间的设计要讲究,而且经常和水打交道,要做到防水防滑, 墙砖地砖均选用白灰色瓷砖,干净宽敞明亮,白色洗手盆吊柜,与整个卫生间相呼应,一字型浴屏将淋浴分割出来,易清理。

铁西檀府-105平-现代简约-厨房.jpg

最大限度的利用厨房空间,巧妙的使用L型橱柜,使得小厨房也变的宽敞,操作台选用白色大理石,吸水性弱,油渍也利于打理。下橱柜均采用酒红色橱柜,很具有观赏能力,给视觉上一种欣赏,也是味觉上的喜爱,上柜采用透明玻璃,使厨房变的更加通透,与白色墙砖层次分明,更有立体感。

铁西檀府-105平-现代简约-户型图.jpg

案例设计师

林凤装饰设计师

设计师:林凤装饰设计师

从业时间:11年

设计理念:艺术的手法,以人为本

预约设计师

算算你家装修多少钱

报名即享丰厚赠品,品质装修

免费报价
咨询热线:400-656-9909
20190221103704574636.jpg

精品设计案例

20180612134930523248.jpg 服务号二维码.jpg