立即预约 立即预约
免费定制整装家居

免费定制整装家居

一站置家 全程无忧 一省到底
hide.png

当前位置: 首页 > 装修案例效果图 > 尚景新世界

尚景新世界 102平 现代简约风格效果图

收藏
案例风格 现代简约 案例户型 三居 案例面积 102平米
楼盘名称 尚景新世界 设计师 林凤装饰全案设计师 案例类型 改善性住宅

设计理念:本案是现代简约风格,采用石膏板,壁纸,银镜和硬包等材质,棚面运用石膏板吊棚做出区域划分,让整个空间的照明更柔和,棚面的点光源和灯带让空间的氛围光更突出。

客厅
第1张
第2张
第3张
第4张
餐厅
第1张
第2张
卧室
第1张
卫生间
第1张
门厅
第1张
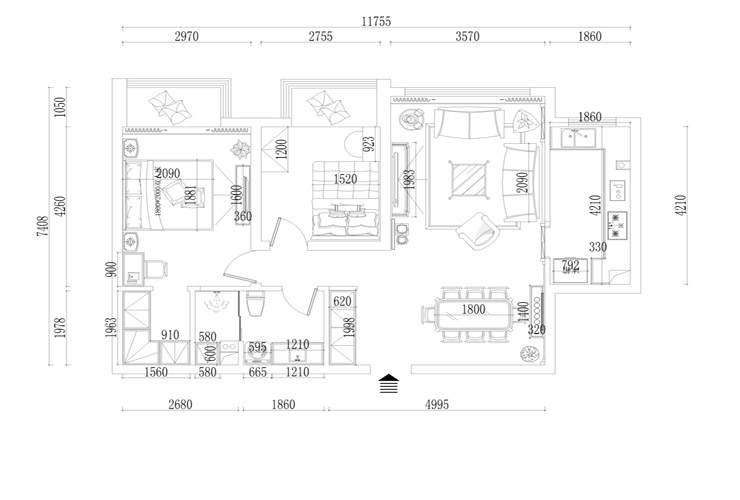
户型图
第1张
  • 案例详情

尚景新世界-102-现代风格-客厅.jpg 尚景新世界-102-现代风格-客厅1.jpg 尚景新世界-102-现代风格-客厅3.jpg 尚景新世界-102-现代风格-客厅2.jpg

电视背景采用理石和镀铬装饰为主体设计,两侧的软包,中间采用理石高贵时尚。沙发墙的背景设计彰显出女主人对家庭付出与地位。灰蓝的布艺沙发看上去幽静深给琐碎生活增添了积分灵动。

尚景新世界-102-现代风格-餐厅1.jpg 尚景新世界-102-现代风格-餐厅.jpg

餐厅背景以镜子做基地,上面镀有玫瑰金的装饰条凸显逼格,棚面造型与客厅吊棚相呼应,家具采用极具现代感的烤漆材质为主,餐厅边柜作用美观而且实用,让餐厅的储物空间得以放大。

尚景新世界-102-现代风格-卧室.jpg

主卧室采用深色地板,床头背景采用石膏板造型设计,并且用彩钢条做出线条造型来勾勒出生活的甜美。,床品的颜色也和窗帘配饰相呼应。棚面采用边棚和彩钢装饰线相结合,并挨饿用筒灯和灯带增加氛围光。

尚景新世界-102-现代风格-卫生间.jpg

卫生间采用理石纹理的瓷砖,整体以暖色调为主,地面采用西班牙米黄理石瓷砖,并且中间带有流沙的设计纹理,和整体墙面的瓷砖上下呼应色彩的整体感强,在视觉效果上的到统一。

尚景新世界-102-现代风格-门厅.jpg

门厅采用方顶造型设计,方正不阿。进门左手边用上下分体式的玄关柜,既美观又方便使用。棚顶上方的虚光灯带和玄关柜下方的灯带的上下呼应,犹如俩条彩虹桥,来平衡生活与工作,家庭与事业。

尚景新世界-102-现代风格-平面图.jpg

案例设计师

林凤装饰全案设计师

设计师:林凤装饰全案设计师

从业时间:8年

设计理念:在设计中体会生活的真谛。在生活中提炼设计的精髓。

预约设计师

算算你家装修多少钱

报名即享丰厚赠品,品质装修

免费报价
咨询热线:400-656-9909
20190221103704574636.jpg

精品设计案例

20180612134930523248.jpg 服务号二维码.jpg