立即预约 立即预约
免费定制整装家居

免费定制整装家居

一站置家 全程无忧 一省到底
hide.png

当前位置: 首页 > 装修案例效果图 > 中海瑞士郡

中海瑞士郡 103平 现代简约风格效果图

收藏
案例风格 现代简约 案例户型 二居 案例面积 103平米
楼盘名称 中海瑞士郡 设计师 林凤装饰设计师 案例类型 改善性住宅

设计理念:自然简洁,现代风格可以无拘束的搭配颜色,材质。

客厅
第1张
餐厅
第1张
第2张
卧室
第1张
卫生间
第1张
阳台
第1张
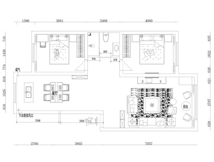
户型图
第1张
  • 案例详情

中海瑞士郡-103平-现在风格-客厅1.jpg

客厅以地板的原木色为主调,展现一个休闲的气氛,电视背景墙处理相当简洁,只是做了石膏板饰面板,简单而不失品味,沙发背景墙采用地板上墙,作为沙发背景,突出现代风格风格的简洁自然

中海瑞士郡-103平-现在风格-餐厅.jpg 中海瑞士郡-103平-现在风格-餐桌.jpg

餐厅餐桌采用鲜艳的孔雀蓝色墙面搭配金属餐桌,同色的餐椅,搭配独具特色的餐边柜及挂画,豪华而又休闲

中海瑞士郡-103平-现在风格-南卧室.jpg

休闲的软垫沙发搭配白色双人床,暖色灯光十分柔和,让整体素雅的卧室不会有太多冰冷的感觉。

中海瑞士郡-103平-现在风格-卫生间.jpg

卫生间的设计和公共区域反差较大,女业主要求卫生间以简洁卫生为主,所以选择了浅灰色搭配

中海瑞士郡-103平-现在风格-阳台.jpg 中海瑞士郡-103平-现在风格-平面.jpg

案例设计师

林凤装饰设计师

设计师:林凤装饰设计师

从业时间:5年

设计理念:求新,求变,求不同。

预约设计师

算算你家装修多少钱

报名即享丰厚赠品,享半价装修

免费报价
咨询热线:400-656-9909
20190221103704574636.jpg

精品设计案例

20180612134930523248.jpg 服务号二维码.jpg