立即预约 立即预约
免费定制整装家居

免费定制整装家居

一站置家 全程无忧 一省到底
hide.png

当前位置: 首页 > 装修案例效果图 > 其仕和颂

其仕和颂 170平 美式风格效果图

收藏
案例风格 美式 案例户型 四居 案例面积 170平米
楼盘名称 其仕和颂 设计师 林凤装饰全案设计师 案例类型 婚房

设计理念:自然简洁,展示出港式的家居风格。金属色和线条感,突出港式风格的豪华感。

客厅
第1张
第2张
第3张
餐厅
第1张
卧室
第1张
第2张
卫生间
第1张
厨房
第1张
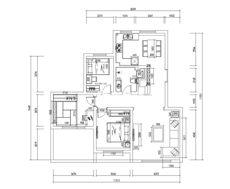
户型图
第1张
  • 案例详情

其仕和颂-170平-美式风格-客厅 (1).jpg 其仕和颂-170平-美式风格-客厅 (3).jpg 其仕和颂-170平-美式风格-客厅 (4).jpg

客厅与阳台中间的梁很好的起到了空间划分的作用,客厅处的吊棚是轻钢龙骨石膏板直线边棚,用胡桃色木梁搭配,而阳台则是阳光房,使用采光更好。电视背景墙以整体石膏板为主,简洁大方,让背景墙更有层次感

其仕和颂-170平-美式风格-餐厅.jpg

餐厅在厨房与客厅中间,在厨房整体拉门的背景下,餐厅区域上方吊轻钢龙骨石膏板直线边棚,有筒灯的照射,餐桌上餐吊起到了照明与美观的效果,空间效果明显

其仕和颂-170平-美式风格-主卧.jpg 其仕和颂-170平-美式风格-次卧.jpg

主卧室宽敞明亮,由于主人对生活品质的要求,在双人床的背景墙上做了颜色乳胶漆,造型以暖色为主,营造卧室温馨的质感。卧室的家具选择依旧是现代为主打,但是实木的地板和床下的毛绒地毯都为整体空间增添温馨的色彩,所以卧室给人的感觉依旧温暖舒适

其仕和颂-170平-美式风格-卫生间.jpg

整体粘贴暖色瓷砖,干净而不失温馨。整体打造U型橱柜,提高整体空间利用率,橱柜以白为主,干净明亮。

其仕和颂-170平-美式风格-厨房.jpg

卫生间采用了暖色系的瓷砖,主要是整洁大方,客户在卫生间不喜欢太繁琐。浴柜整体打造,洗手盆定制的台板,定制的台板将洗衣机包在里侧,空间布局合理

其仕和颂-170平-美式风格-平面.jpg

案例设计师

林凤装饰全案设计师

设计师:林凤装饰全案设计师

从业时间:10年

设计理念:设计源于生活

预约设计师

算算你家装修多少钱

报名即享丰厚赠品,品质装修

免费报价
咨询热线:400-656-9909
20190221103704574636.jpg

精品设计案例

20180612134930523248.jpg 服务号二维码.jpg