立即预约 立即预约
免费定制整装家居

免费定制整装家居

一站置家 全程无忧 一省到底
hide.png

当前位置: 首页 > 装修案例效果图 > 御景·新世界

御景·新世界 199平 现代简约风格效果图

收藏
案例风格 现代简约 案例户型 三居 案例面积 199平米
楼盘名称 御景·新世界 设计师 林凤装饰设计师 案例类型 改善性住宅

设计理念:本案是以现代风格的设计为主。居家生活的质感不是靠物质的华丽堆砌,而是借由适宜的光线、材质元素以及经过慎密计算的生活动线,交织成凌驾于奢华之上的纯粹放松。白色的彰显与灰色的内敛,搭配上低饱和度的胡桃木皮,在空间中产生对话。立体的线条,精准的比例拿捏与轻透建材的语言诠释着少即是多的设计理念。

客厅
第1张
第2张
餐厅
第1张
第2张
第3张
卧室
第1张
卫生间
第1张
厨房
第1张
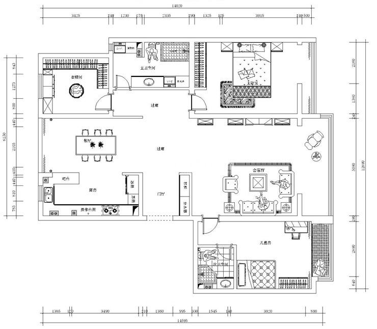
户型图
第1张
  • 案例详情

御景·新世界-199㎡-现代风格-客厅.jpg 御景·新世界-199㎡-现代风格-客厅2.jpg

客厅的天花板,背景墙、地面都未经过太多的修饰,保持中灰色调不夺视线。而对于窗户的处理,本身大面积的窗户采光即是好的。阳台上的扶手椅形态纤巧曼妙且非常轻便。可以随意挪动到任何需要他们的地方。地板的木料同样延伸到了这面墙上,让整个空间闲的非常统一且现代感十足

御景·新世界-199㎡-现代风格-餐厅.jpg 御景·新世界-199㎡-现代风格-餐厅2.jpg 御景·新世界-199㎡-现代风格-餐厅3.jpg

餐厅部分,设计师选用造型简单的餐桌椅使得极简达到最佳,收纳柜线条明晰流畅功能性也能很好的兼顾到。而且在厨房设计了敞开式,房主在做饭的时候,孩子还可以在桌子上面写作业。让整个空间在互动上也增添了不少乐趣。

御景·新世界-199㎡-现代风格-卧室.jpg

正如古人说:良田万顷,日食一升,广厦千间,夜眠八尺。卧室的设计与舒适与否,直接影响着人们的睡眠质量和心情的好坏,所以卧室的设计尤为重要。卧室墙面采用硬包做的造型颜色比较深沉,整体空间营造一个让人安心有睡意的空间。

御景·新世界-199㎡-现代风格-卫生间.jpg

卫生间以实用为主,由于空间有限把原有的两个卫生间合并成一个卫生间,黑白灰的色调中凸显材质的质感和纹路,并加以淡绿的背景墙为衬托。整个格局的摆放也凸显的尤为重要,浴屏的设计让实际使用来说更加的方便,快捷。

御景·新世界-199㎡-现代风格-厨房.jpg

唯美食与爱不可辜负,餐厨空间已然成为理性与感性并存的最佳矛盾综合体。现代简约,黑白灰,木质家具,整体定制欧派橱柜,都说厨房是家里最接近烟火气的地方,水与火在这里交融,幻化成各式滋味,带来人间百态。

御景·新世界-199㎡-现代风格-平面图.jpg

案例设计师

林凤装饰设计师

设计师:林凤装饰设计师

从业时间:6年

设计理念:源于生活,生活因设计而改变!

预约设计师

算算你家装修多少钱

报名即享丰厚赠品,品质装修

免费报价
咨询热线:400-656-9909
20190221103704574636.jpg

精品设计案例

20180612134930523248.jpg 服务号二维码.jpg