立即预约 立即预约
免费定制整装家居

免费定制整装家居

一站置家 全程无忧 一省到底
hide.png

当前位置: 首页 > 装修案例效果图 > 中海和平之门

中海和平之门 89平 现代简约风格效果图

收藏
案例风格 现代简约 案例户型 二居 案例面积 89平米
楼盘名称 中海和平之门 设计师 林凤设计师 案例类型 婚房

设计理念:本案采用的风格为现代简约风格,整体色调以浅色为主,此户型面积不是特别大,设计师以浅色扩大空间,增加室内空间的亮度,使整个空间宽敞、通透。

客厅
第1张
第2张
第3张
餐厅
第1张
卧室
第1张
第2张
卫生间
第1张
门厅
第1张
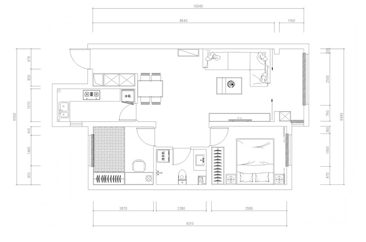
户型图
第1张
  • 案例详情

中海和平之门-89平-现代风格-客厅.jpg 中海和平之门-89平-现代风格-客厅1.jpg 中海和平之门-89平-现代风格-客厅2.jpg

客厅整个空间多采用直线条,无论是顶面,地面还是墙面,都采用平面直线加以修饰,而此空间的最大特色是电视背景墙的组合柜,采用平面的门板,充当护墙板,柜子也增加了储物功能,同时静版白色与木色结合。一静一动的搭配,使电视背景墙整体为客厅空间增添了活跃氛围,也忽略了柜子本身的厚度给空间带来闷的感觉。

中海和平之门-89平-现代风格-餐厅.jpg 中海和平之门-89平-现代风格-次卧.jpg 中海和平之门-89平-现代风格-主卧.jpg

卧室同样采用板木结合的家具,白色实木材质与木色相对应,同时加入亮点色去做点缀,灰色的墙面压底空间的亮度,但是由于客户楼层适中,采光非常好,使卧室呈现怡然自得的意境。

中海和平之门-89平-现代风格-卫生间.jpg

卫生间采用仿古砖,浴室柜采用白色烤漆与实木纹理,充分体现现代简约的简单大气。同时地砖采用亚光灰色系列,与墙砖搭配,强地融为一体,亚光系列也增强了地砖的防滑效果。

中海和平之门-89平-现代风格-门厅.jpg 中海和平之门-89平-现代风格-平面图.jpg

案例设计师

林凤设计师

设计师:林凤设计师

从业时间:5年

设计理念:设计源于生活,生活因设计而改变,用有限的空间。做无限的设计,成就梦想之家。

预约设计师

算算你家装修多少钱

报名即享丰厚赠品,品质装修

免费报价
咨询热线:400-656-9909
20190221103704574636.jpg

精品设计案例

20180612134930523248.jpg 服务号二维码.jpg