立即预约 立即预约
免费定制整装家居

免费定制整装家居

一站置家 全程无忧 一省到底
hide.png

当前位置: 首页 > 装修案例效果图 > 沈铁家园

沈铁家园 115平 其他风格效果图

收藏
案例风格 其他 案例户型 二居 案例面积 115平米
楼盘名称 沈铁家园 设计师 林凤装饰设计师 案例类型 婚房

设计理念:本案是美式风格,客户对户型空间有所要求,因为空间比较大的两室,要有简单一些以舒适为主设计,整体感觉要求简洁清新明快的,尝试设计大胆的手法来做。

客厅
第1张
第2张
第3张
餐厅
第1张
第2张
卧室
第1张
卫生间
第1张
厨房
第1张
门厅
第1张
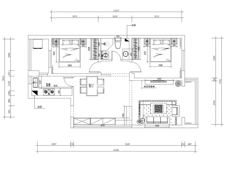
户型图
第1张
  • 案例详情

沈铁家园-115平-美式风格-客厅整体.jpg 沈铁家园-115平-美式风格-客厅沙发背景.jpg 沈铁家园-115平-美式风格-客厅电视背景.jpg

客厅比分整体涂刷暖色的乳胶漆,背景墙的框内浅绿色的颜色,有一些清新的感觉,客厅设计了一个圈棚设计没有虚光用的成品石膏线运用美式的元素,局部深色的家具。

沈铁家园-115平-美式风格-餐厅及玄关.jpg 沈铁家园-115平-美式风格-餐厅.jpg

餐厅的空间比较大一些从棚顶设计做为区分,简单的装饰画与墙面的暖色乳胶漆有个鲜明的对比,塑造了餐厅的食欲感。

沈铁家园-115平-美式风格-卧室.jpg

米色的床头前面与白色的棚顶有明显的区分和划分,深色的实木床与白色的吸塑衣柜很融洽。

沈铁家园-115平-美式风格-卫生间.jpg

卫生间空间感要给人一种时尚的感觉,在选砖的材质上就定位灰色,浴屏的设计起到干湿分离的作用,浴室柜深色拼框面,整体的感觉很搭,与设计初期很温和。

沈铁家园-115平-美式风格-厨房.jpg

厨房砖选择灰色的为了烘托一下橱柜,橱柜选择吸塑白色的,因为年龄的关系考虑。

沈铁家园-115平-美式风格-玄关.jpg 沈铁家园-115平-美式风格-平面图.jpg

案例设计师

林凤装饰设计师

设计师:林凤装饰设计师

从业时间:10年

设计理念:感受生活品质,设计空间生活。

预约设计师

算算你家装修多少钱

报名即享丰厚赠品,享半价装修

免费报价
咨询热线:400-656-9909
20190221103704574636.jpg

精品设计案例

20180612134930523248.jpg 服务号二维码.jpg