立即预约 立即预约
免费定制整装家居

免费定制整装家居

一站置家 全程无忧 一省到底
hide.png

当前位置: 首页 > 装修案例效果图 > 金水佳园

金水佳园 170平 现代简约风格效果图

收藏
案例风格 现代简约 案例户型 四居 案例面积 170平米
楼盘名称 金水佳园 设计师 林凤装饰设计师 案例类型 改善性住宅

设计理念:现代简约,简约不简单,大方得体不失档次!

客厅
第1张
第2张
第3张
第4张
餐厅
第1张
第2张
第3张
卧室
第1张
卫生间
第1张
厨房
第1张
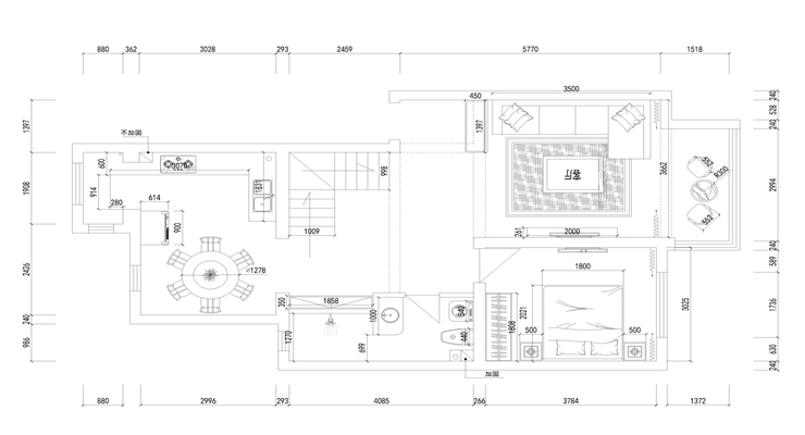
户型图
第1张
  • 案例详情

金水佳园-170平-现代风格-客厅1.jpg 金水佳园-170平-现代风格-客厅.jpg 金水佳园-170平-现代风格-客厅2.jpg 金水佳园-170平-现代风格-客厅3.jpg

客厅的的效果并不复杂,没有复杂奢华的吊棚,背景墙用硅藻泥做的净版搭配,用烤漆的电视柜和硅藻泥粗糙的感觉形成鲜明的材质对比度,奢华的水晶灯起到了点缀的效果墙上的挂画窗帘,地毯和沙发的色彩相互搭配!效果分明!

金水佳园-170平-现代风格-餐厅.jpg 金水佳园-170平-现代风格-餐厅2.jpg 金水佳园-170平-现代风格-餐厅1.jpg

餐厅的空间选用了理石面的餐桌,把整体空间的档次就提升上去了,由于是和厨房连体的空间,所以选用的是圆形的餐桌,颜色厚重华丽!由于高度的问题没有配备水晶灯具有些遗憾!

金水佳园-170平-现代风格-主卧室.jpg

卧室的感觉和色彩以温馨大方为主,色彩柔和,搭配灯具,窗帘,现代感很强,床头的挂画颜色偏重作为点缀!

金水佳园-170平-现代风格-卫生间.jpg

卫生间的格局是设计师重新设计的,原有的墙体并不是这样的,由于过于宽大浪费空间所以做成干湿分离的区域,使用起来方便,又为厅中让出酒柜的位置,空间利用更加合理!

金水佳园-170平-现代风格-厨房.jpg

厨房和卧室的空间是连体的由于后期搭的楼板问题所以整体都需要做石膏板吊顶,打筒灯,橱柜选用白色的,门板后面搭配白色带有暖色纹理的墙砖使本来有些冷硬的空间综合很多!

金水佳园-170平-现代风格-平面布局.jpg

案例设计师

林凤装饰设计师

设计师:林凤装饰设计师

从业时间:7年

设计理念:设计源于生活,生活因设计而改变!成就空间和谐,让设计物有所值!让细节缔造完美!

预约设计师

算算你家装修多少钱

报名即享丰厚赠品,享半价装修

免费报价
咨询热线:400-656-9909
20190221103704574636.jpg

精品设计案例

20180612134930523248.jpg 服务号二维码.jpg