立即预约 立即预约
免费定制整装家居

免费定制整装家居

一站置家 全程无忧 一省到底
hide.png

当前位置: 首页 > 装修案例效果图 > 金地檀府

金地檀府 85平 北欧风格效果图

收藏
案例风格 北欧 案例户型 二居 案例面积 85平米
楼盘名称 金地檀府 设计师 张景新 案例类型 婚房

设计理念:为生活设计,创造设计主义。

客厅
第1张
第2张
第3张
餐厅
第1张
卧室
第1张
第2张
卫生间
第1张
厨房
第1张
门厅
第1张
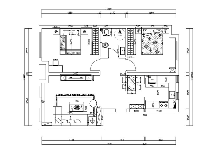
户型图
第1张
  • 案例详情

金地檀府-85平-现代北欧- 客厅3.jpg 金地檀府-85平-现代北欧-客厅.jpg 金地檀府-85平-现代北欧-客厅2.jpg

电视背景没有做太多的造型,整体是以高低错落的层板相互搭配,地面用条纹的地毯突出整个空间的亮点,将沙发上的抱枕和背景的挂画融为一体,使得心情更加放松愉悦。

金地檀府-85平-现代北欧-餐厅.jpg

餐厅是由简单的四人位餐桌搭配厨房下柜的颜色,而墙面挂画颜色,是更能把餐厅和客厅所有的颜色搭配到一体。

金地檀府-85平-现代北欧-主卧室1.jpg 金地檀府-85平-现代北欧-主卧室2.jpg

主卧室背景的颜色又同时呼应窗帘的颜色 背景墙配以现代感十足的挂画,不仅颜色更加丰富,而且使得整个卧室又多了一份活力与俏皮。

金地檀府-85平-现代北欧-卫生间.jpg

卫生间比较宽敞,配以深色的墙砖,使整个空间不至于太过空旷,整体定制的手盆,使得空间高端大气

金地檀府-85平-现代北欧-厨房.jpg

厨房的台面与餐厅桌椅颜色统一,均由木纹搭配岩石板制成,明亮中又有奢华,干净整洁又好打理。

金地檀府-85平-现代北欧-玄关2.jpg 平面布置图.jpg

案例设计师

张景新

设计师:张景新

从业时间:6年

设计理念:合理的划分空间,让设计融入生活,营造自然,品味,格调

预约设计师

算算你家装修多少钱

报名即享丰厚赠品,享半价装修

免费报价
咨询热线:400-656-9909
20190221103704574636.jpg

精品设计案例

20180612134930523248.jpg 服务号二维码.jpg