立即预约 立即预约
免费定制整装家居

免费定制整装家居

一站置家 全程无忧 一省到底
hide.png

当前位置: 首页 > 装修案例效果图 > 益格筑景

益格筑景 260平 现代简约风格效果图

收藏
案例风格 现代简约 案例户型 三居 案例面积 260平米
楼盘名称 益格筑景 设计师 林凤装饰 案例类型 改善性住宅

设计理念:本案以简洁的表现形式来满足人们对空间环境那种感性的、本能理性的需求,这是当今国际社会流行的设计风格——简洁明快的北约。人们在这日趋繁忙的生活中,渴望得到一种能彻底放松、以简洁和纯净来调节转换精神的空间,这是人们在互补意识支配下,所产生的亟欲摆脱繁琐、复杂、追求简单和自然的心理。

客厅
第1张
第2张
第3张
第4张
餐厅
第1张
卧室
第1张
卫生间
第1张
厨房
第1张
休闲区
第1张
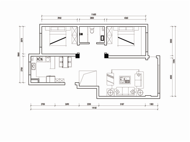
户型图
第1张
  • 案例详情

益格筑景-206-现代简约-客厅1.jpg 益格筑景-206-现代简约-客厅.jpg 益格筑景-206-现代简约-客厅2.jpg 益格筑景-206-现代简约-客厅3.jpg

背景墙采用实用、美观的整体电视柜为主。与中规中矩的矩形吊棚棱角分明突显职业的态度“做人要方方正正”沙发墙整体涂刷了深色给人更感觉温馨、舒适感较强。

益格筑景-206-现代简约-餐厅.jpg

餐厅主要的设计是吧台的变化。使得视觉更开阔、这种方式的表现更有氛围,更新颖。加上跟棚顶 、墙画的搭配更具特色。

益格筑景-206-现代简约-卧室.jpg

本案的卧室,棚面采用宽条石膏板制作,墙面壁纸纹理和线条的感觉和起居厅一致简洁大气,使得卧室更温馨、更典雅。

益格筑景-206-现代简约-卫生间.jpg

卫生间的设计主要还是在瓷砖的设计上突出质感,地面多边形深色瓷砖、墙面白色条纹小砖块是此案的重点。穿插了一小点的北欧风设计思路。加上小圆型的镜子的选择都很有艺术性。

益格筑景-206-现代简约-厨房.jpg

厨房的设计用花砖搭配白色的橱柜简洁明了、颜色分明、搭配对比性强,增加了厨房的干净、时尚感。

益格筑景-206-现代简约-地下室.jpg 益格筑景-206-现代简约-平面图.jpg

案例设计师

林凤装饰

设计师:林凤装饰

从业时间:15年

设计理念:用心感受生活,用设计完善空间,让设计与生活空间完美结合。

预约设计师

算算你家装修多少钱

报名即享丰厚赠品,享半价装修

免费报价
咨询热线:400-656-9909
20190221103704574636.jpg

精品设计案例

20180612134930523248.jpg 服务号二维码.jpg