立即预约 立即预约
免费定制整装家居

免费定制整装家居

一站置家 全程无忧 一省到底
hide.png

当前位置: 首页 > 装修案例效果图 > 唐轩公馆

唐轩公馆 200平 欧式风格效果图

收藏
案例风格 欧式 案例户型 三居 案例面积 200平米
楼盘名称 唐轩公馆 设计师 杨达 案例类型 婚房

设计理念:为生活设计,创造设计主义。

客厅
第1张
餐厅
第1张
卫生间
第1张
厨房
第1张
书房
第1张
第2张
第3张
过廊
第1张
第2张
第3张
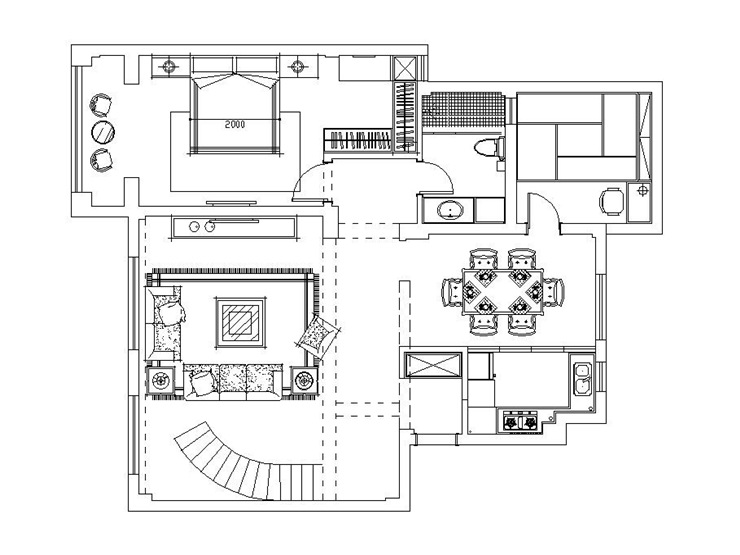
户型图
第1张
  • 案例详情

唐轩公馆-200平-欧式风格-客厅首图.jpg

欧式风格客厅门窗也是有特点的,这类装修的门窗上半部大多做成圆弧形,然后在加入了带有花纹的石膏线勾边。入厅口处多竖起两根豪华的罗马柱,室内则有真正的壁炉或假的壁炉造型。墙面较好用壁纸,或选用乳胶漆,以烘托豪华效果。

唐轩公馆-200平-欧式风格-餐厅.jpg

大气、自然是欧式简约装修的特点,家上有带有西方复古图案以及西化的造型的桌椅,给人感觉十分舒服。

唐轩公馆-200平-欧式风格-卫生间.jpg 唐轩公馆-200平-欧式风格-厨房.jpg 唐轩公馆-200平-欧式风格-书房.jpg 唐轩公馆-200平-欧式风格-书房3.jpg 唐轩公馆-200平-欧式风格-书房2.jpg 唐轩公馆-200平-欧式风格-过廊.jpg 唐轩公馆-200平-欧式风格-过廊2.jpg 唐轩公馆-200平-欧式风格-过廊1.jpg 唐轩公馆-200平-欧式风格-平面布局图.jpg

案例设计师

杨达

设计师:杨达

从业时间:10年

设计理念:精雕细琢,返璞归真。

预约设计师

算算你家装修多少钱

报名即享丰厚赠品,品质装修

免费报价
咨询热线:400-656-9909
20190221103704574636.jpg

精品设计案例

20180612134930523248.jpg 服务号二维码.jpg