立即预约 立即预约
免费定制整装家居

免费定制整装家居

一站置家 全程无忧 一省到底
hide.png

当前位置: 首页 > 装修案例效果图 > 龙湖唐宁one

龙湖唐宁one 113平 轻奢风格效果图

收藏
案例风格 轻奢 案例户型 三居 案例面积 113平米
楼盘名称 龙湖唐宁one 设计师 李承成 案例类型 改善性住宅

设计理念:为生活设计,创造设计主义。

客厅
第1张
餐厅
第1张
卧室
第1张
第2张
卫生间
第1张
儿童房
第1张
衣帽间
第1张
第2张
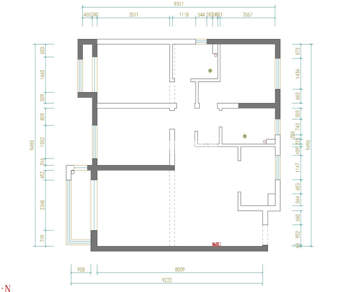
户型图
第1张
  • 案例详情

龙湖唐宁one-113平-轻奢风格-客餐厅.jpg

电视背景墙使用岩板上墙的处理手法,使整个空间通透大气,岩板的整体性比之地砖上墙更加的时尚自然,再利用玫瑰金收边框让整个背景墙多了几分现代的贵气。

龙湖唐宁one-113平-轻奢风格-餐厅.jpg

餐厅是由简单的四人位餐桌搭配玫瑰金边框背景墙,简单中又有一丝奢侈,轻奢气息一览无余,而边框中间的镜子使整个空间瞬间增大,又多了一丝明亮

龙湖唐宁one-113平-轻奢风格-次卧室.jpg 龙湖唐宁one-113平-轻奢风格-主卧室.jpg

主卧室硬包床头背景墙配以现代感十足的挂画,不仅颜色更加丰富,而且使得整个卧室又多了一份活力与俏皮。

龙湖唐宁one-113平-轻奢风格-卫生间.jpg

卫生间比较宽敞,但是配以深色的墙地砖,使整个空间不至于太过空旷,马桶后方的挂画让整个卫生间更加的大气,轻奢流露。

龙湖唐宁one-113平-轻奢风格-儿童房.jpg 龙湖唐宁one-113平-轻奢风格-衣帽间1.jpg 龙湖唐宁one-113平-轻奢风格-衣帽间2.jpg 龙湖唐宁one-113平-轻奢风格-平面.jpg

案例设计师

李承成

设计师:李承成

从业时间:15年

设计理念:细节决定品质。

预约设计师

算算你家装修多少钱

报名即享丰厚赠品,享半价装修

免费报价
咨询热线:400-656-9909
20190221103704574636.jpg

精品设计案例

20180612134930523248.jpg 服务号二维码.jpg