立即预约 立即预约
免费定制整装家居

免费定制整装家居

一站置家 全程无忧 一省到底
hide.png

当前位置: 首页 > 装修案例效果图 > 坤泰新界

坤泰新界 109平 现代简约风格效果图

收藏
案例风格 现代简约 案例户型 三居 案例面积 109平米
楼盘名称 坤泰新界 设计师 林凤设计师 案例类型 婚房

设计理念:本案是经典的现代简约风格,包含了现代元素特有的色彩搭配以及空间布局,让空间尽量显得明亮大方,视野做到最开阔,让空间结构饱满起来!

客厅
第1张
第2张
第3张
餐厅
第1张
卧室
第1张
卫生间
第1张
厨房
第1张
书房
第1张
门厅
第1张
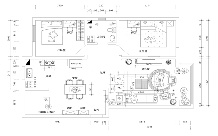
户型图
第1张
  • 案例详情

坤泰新界-109平-现代风格-客厅1.jpg 坤泰新界-109平-现代风格-客厅2.jpg 坤泰新界-109平-现代风格-客厅3.jpg

客厅是一个非常关键的空间,颜色不能太压抑,所以我我把背景墙简单的做了一些造型之后贴了一个冷色系的壁纸,但是在沙发背景墙我并没有做任何颜色,只是简单的做了一些挂画装饰,让客厅整体空间更有层次感!

坤泰新界-109平-现代风格-餐厅1.jpg

把餐桌的位置放在了餐厅的最中间,跟敞开式厨房有一个更好的衔接,并且餐桌的功能性也增加了,可以吧餐桌代替中岛去用!

坤泰新界-109平-现代风格-卧室.jpg

卧室很简单,不需要做过多的装饰,只需要把空间颜色搭配好,简简单单的把床头背景墙贴点壁纸,让空间更有进深感!

坤泰新界-109平-现代风格-卫生间.jpg

卫生间延续了客厅的色彩搭配,让卫生间更干净整洁,并且跟整体空间相搭配!

坤泰新界-109平-现代风格-厨房.jpg

厨房的最大特点就是敞开式,因为敞开式厨房能让整体房屋的视觉效果提高很多,显得效果更大气层次感更强!

坤泰新界-109平-现代风格-书房.jpg 坤泰新界-109平-现代风格-玄关.jpg 坤泰新界-109平-现代风格-平面图.jpg

案例设计师

林凤设计师

设计师:林凤设计师

从业时间:9年

设计理念:细节是基础,专注是根本

预约设计师

算算你家装修多少钱

报名即享丰厚赠品,品质装修

免费报价
咨询热线:400-656-9909
20190221103704574636.jpg

精品设计案例

20180612134930523248.jpg 服务号二维码.jpg