立即预约 立即预约
免费定制整装家居

免费定制整装家居

一站置家 全程无忧 一省到底
hide.png

当前位置: 首页 > 装修案例效果图 > 保利达江湾城

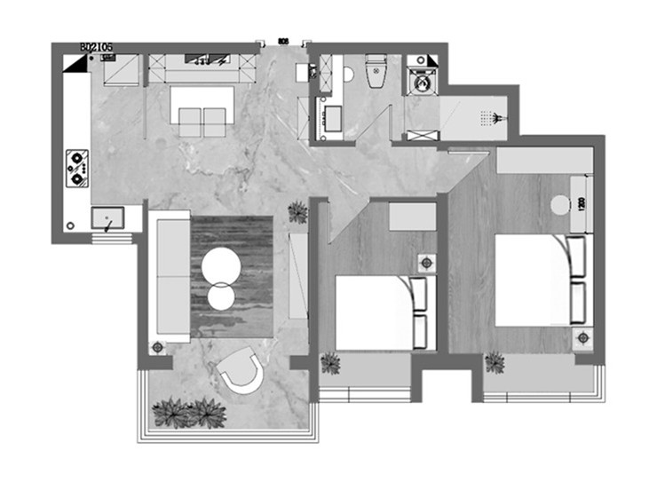
保利达江湾城 91平 北欧风格效果图

收藏
案例风格 北欧 案例户型 二居 案例面积 91平米
楼盘名称 保利达江湾城 设计师 林凤设计师 案例类型 改善性住宅

设计理念:本案的居住对象是两位退休老人及待嫁的女儿为主。由于女儿经常出差到国外,孙女一家住的又比较近,所以老人的孙女可能会经常留宿。装修要求整体氛围要温馨舒适、功能合理。卫生间的要求有独立宽敞的洗浴区及完整的收纳,厨房餐厅的视野要通透,由于周末孙女一家三口常来吃晚餐,希望餐厅空间灵活一些,

  • 案例详情

保利达江湾城-91㎡-北欧现代- 客厅 (1).jpg 保利达江湾城-91㎡-北欧现代- 客厅 (3).jpg 保利达江湾城-91㎡-北欧现代- 客厅 (2).jpg

客厅简约的设计,精致的灯光及装饰画搭配,不但让空间看起来更加轻盈又让空间软装搭配充满变化,沙发旁边的落地灯让夜晚的客厅更加神秘浪漫有情调。

保利达江湾城-91㎡-北欧现代- 餐厅 (1).jpg 保利达江湾城-91㎡-北欧现代- 餐厅 (2).jpg 保利达江湾城-91㎡-北欧现代- 次卧 (1).jpg 保利达江湾城-91㎡-北欧现代- 次卧 (2).jpg 保利达江湾城-91㎡-北欧现代- 主卧 (1).jpg 保利达江湾城-91㎡-北欧现代- 主卧 (2).jpg

主卧房间的设计考虑主人睡眠习惯,采用1.8米大床+椰棕床垫+环抱式床头,让两人睡眠互不打扰睡眠更安心。

保利达江湾城-91㎡-北欧现代-卫生间 (1).jpg 保利达江湾城-91㎡-北欧现代-卫生间 (2).jpg 保利达江湾城-91㎡-北欧现代-卫生间 (3).jpg 保利达江湾城-91㎡-北欧现代- 门厅 (1).jpg 保利达江湾城-91㎡-北欧现代-厨房 (1).jpg 保利达江湾城-91㎡-北欧现代-厨房 (2).jpg 保利达江湾城-91㎡-北欧现代- 门厅 (1).jpg 保利达江湾城-91㎡-北欧现代- 门厅 (2).jpg 保利达江湾城-91㎡-北欧现代- 平面图.jpg

案例设计师

林凤设计师

设计师:林凤设计师

从业时间:9年

设计理念:艺术里的炊烟 专业、走心、做生活化有品位设计 私人定制您的家居空间,用设计引导和改变生活态度

预约设计师

算算你家装修多少钱

报名即享丰厚赠品,享半价装修

免费报价
咨询热线:400-656-9909
20190221103704574636.jpg

精品设计案例

20180612134930523248.jpg 服务号二维码.jpg