立即预约 立即预约
免费定制整装家居

免费定制整装家居

一站置家 全程无忧 一省到底
hide.png

当前位置: 首页 > 装修案例效果图 > 首创国际城

首创国际城 86平 北欧风格效果图

收藏
案例风格 北欧 案例户型 二居 案例面积 86平米
楼盘名称 首创国际城 设计师 林凤装饰设计师 案例类型 婚房

设计理念:本案以北欧为主的设计,中性时尚,温馨,家是一家人的家,不要太另类,不要太过复杂,这种搭配令空间充满恒久的亲和力!让人比较容易接受的风格,是最值得选择。

客厅
第1张
第2张
餐厅
第1张
第2张
卧室
第1张
厨房
第1张
门厅
第1张
过廊
第1张
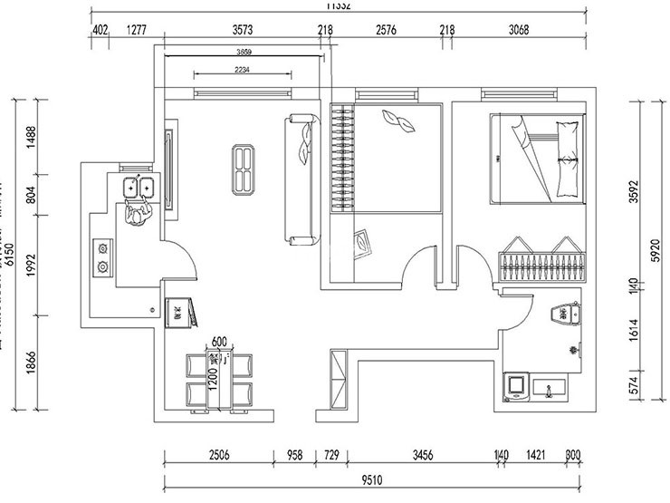
户型图
第1张
  • 案例详情

首创国际城-86平-北欧风格-客厅.jpg 首创国际城-86平-北欧风格-客厅1.jpg

客户喜欢明亮的的起居室,更多的是意境和随意。带给业主不尽的舒适触感。

首创国际城-86平-北欧风格-餐厅.jpg 首创国际城-86平-北欧风格-餐厅1.jpg

餐厅整体和客厅融为一体。

首创国际城-86平-北欧风格-卧室.jpg

小卧室打造现代风格,要求简单大方色彩明亮。

首创国际城-86平-北欧风格-厨房.jpg 首创国际城-86平-北欧风格-门厅.jpg 首创国际城-86平-北欧风格-过廊.jpg 首创国际城-86平-北欧风格-平面布局图.jpg

案例设计师

林凤装饰设计师

设计师:林凤装饰设计师

从业时间:4年

设计理念:因人而异的设计才是好设计

预约设计师

算算你家装修多少钱

报名即享丰厚赠品,享半价装修

免费报价
咨询热线:400-656-9909
20190221103704574636.jpg

精品设计案例

20180612134930523248.jpg 服务号二维码.jpg