立即预约 立即预约
免费定制整装家居

免费定制整装家居

一站置家 全程无忧 一省到底
hide.png

当前位置: 首页 > 装修案例效果图 > 雅宾利花园

雅宾利花园 92平 北欧风格效果图

收藏
案例风格 北欧 案例户型 二居 案例面积 92平米
楼盘名称 雅宾利花园 设计师 林凤设计师 案例类型 婚房

设计理念:本案以北欧为主风格,时尚,简约,富于变化。以简洁的手法创造设计和装饰的精髓。这种搭配令空间充满恒久的亲和力。家里的每一寸空间都值得我们用心去装饰。

客厅
第1张
餐厅
第1张
第2张
卫生间
第1张
厨房
第1张
第2张
门厅
第1张
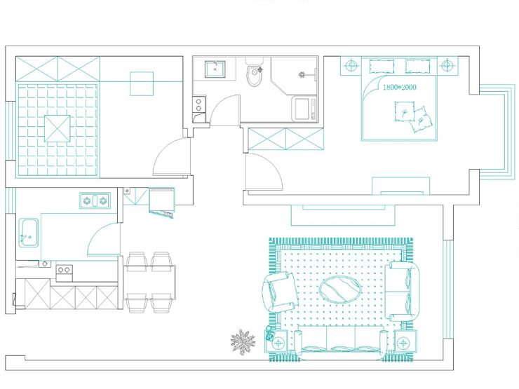
户型图
第1张
  • 案例详情

雅宾利花园-92平-北欧风格-客餐厅.jpg

客户喜欢的起居室主要以灰色和白色为主 ,简洁时尚。一黄色做点缀,充满活力

雅宾利花园-92平-北欧风格-餐厅.jpg 雅宾利花园-92平-北欧风格-餐厅2.jpg

北欧餐厅简洁,干净。原木质餐椅造型独特时尚,

雅宾利花园-92平-北欧风格-卫生间.jpg

卫生间墙地砖选择灰色系列的砖给人带来的是一种安静放松,卫生间为干湿分离,设计感强体现出了客户的高大上。

雅宾利花园-92平-北欧风格-厨房.jpg 雅宾利花园-92平-北欧风格-厨房2.jpg

厨房主要以白色为主配原木色板材 给人干净且温馨的感觉 。

雅宾利花园-92平-北欧风格-玄关.jpg 雅宾利花园-92平-北欧风格-平面布局图.jpg

案例设计师

林凤设计师

设计师:林凤设计师

从业时间:8年

设计理念:设计界的一股清流,设计走心最重要。

预约设计师

算算你家装修多少钱

报名即享丰厚赠品,享半价装修

免费报价
咨询热线:400-656-9909
20190221103704574636.jpg

精品设计案例

20180612134930523248.jpg 服务号二维码.jpg